
Creon Immobilien
Herr Oliver Creon
041 ···
Nr. anzeigenPreise & Kosten
Provision für Käufer
Die Maklercourtage ist jeweils hälftig von Verkäufer und Käufer nach Abschluss des Kaufvertrages an uns zu zahlen.
Der vom Käufer an uns zu zahlende Teil beträgt 2,95 % des Kaufpreises incl. 19% ges. MwSt.
Lage
Bendestorf gilt als einer der am schönsten gelegenen Orte im südlichen Einzugsbereich Hamburgs. Eingebettet in ein kleines Tal, begrenzt durch eine Hügelkette und das Landschafts-schutzgebiet "Klecker Wald" und Wiesenlandschaften an der Seeve - ein Paradies für Naturfreunde - erinnert Bendestorf an Urlaubsgebiete in...
Das Haus
Kategorie
Einfamilienhaus
Geschosse
3 Geschosse
Baujahr
1969
Bezug
01.06.2026
Derzeitige Nutzung
frei
Energie & Heizung
Warum sehe ich diese Anzeige? – Du siehst diese Anzeige basierend auf Ihrer Navigation auf unserer Website und den Suchkriterien, die du verwendet hast.
Energieausweistyp
Bedarfsausweis
Gebäudetyp
Wohngebäude
Baujahr laut Energieausweis
1969
Wesentliche Energieträger
Öl
Gültigkeit
18.03.2026 bis 18.03.2036
Effizienzklasse
D
Endenergiebedarf
127,00 kWh/(m²·a)
Weitere Energiedaten
Haustyp
Massivhaus
Energieträger
Öl
Heizungsart
Fußbodenheizung, offener Kamin, Zentralheizung
Details
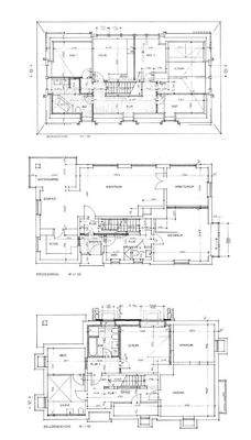
Objektbeschreibung
Das hier angebotene Reetdachhaus wurde 1969 nach den individuellen Vorstellungen der Eigentümer geplant und von einem sehr bekannten Architekten umgesetzt. Im Rahmen einer umfassenden Sanierung im Jahr 2001 ist das Haus modernisiert worden und seitdem mit zwei separaten Einheiten nutzbar.
Es handelt sich um ein sehr...
Ausstattung
. Einbauschränke
. Fensterläden aus Holz
. Garagen 2x
. Gartenhaus
. Internet - Glasfaser
. Kamin
. Parkettböden
. Sauna
. Sprossenfenster Iso-Verglasung Holz - nach 2001
. Terrassen
. Wintergarten / Freisitz
Flächen:
Keller bzw. Sockelgeschoss: ca. 30 m² Wohn- und 80 m²...
Weitere Informationen
Sonstiges
Bitte fordern Sie unser ausführliches Exposé mit weiteren Informationen über die Kontaktfunktion dieses Inserates oder per Mail an.
Gern vereinbaren wir einen individuellen Besichtigungstermin mit Ihnen.
Stichworte
Garage vorhanden, Stellplatz vorhanden, Süd-West-Balkon/Terrasse, Breitband Zugang...
Anbieter der Immobilie
Online-ID: 2pq6857
Referenznummer: BNEGM2
Finde Angebote wie dieses
Hier geht es zu unserem Impressum, den Allgemeinen Geschäftsbedingungen, den Hinweisen zum Datenschutz und nutzungsbasierter Online-Werbung.