
EDEX Immobilien GmbH
Frau Yasmin Szaraniec
+43 ···
Nr. anzeigenPreise & Kosten
Provision für Käufer
3% des Kaufpreises zzgl. 20% USt.
Lage
Pettenkofengasse, Schloss Belvedere
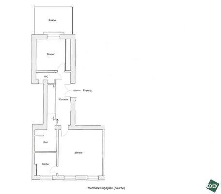
Die Wohnung
Kategorie
Terrassenwohnung
Wohnungslage
2. Geschoss
Bezug
nach Vereinbarung
Wohnanlage
Energie & Heizung
Warum sehe ich diese Anzeige? – Du siehst diese Anzeige basierend auf Ihrer Navigation auf unserer Website und den Suchkriterien, die du verwendet hast.
Heizwärmebedarf (HWB)
64,97 kWh/(m²·a)
Gesamtenergieeffizienz (fGEE)
1,28
Weitere Energiedaten
Energieträger
Gas
Heizungsart
Etagenheizung
Details
Objektbeschreibung
_English version below_
Highlights
* Hofseitiges Schlafzimmer mit Balkon
* Klimaanlage in allen Räumen
* Generalsanierung der Wohnung im Jahr 2013
-------------------------
Die Wohnung
Die gegenständliche Wohnung wird derzeit gemeinsam mit der angrenzenden Einheit Top 3 als eine...
Weitere Informationen
Stichworte
Ost-Balkon/Terrasse, Anzahl der Badezimmer: 1, Anzahl der separaten WCs: 1, Anzahl Balkone: 1, Bundesland: Wien
Anbieter der Immobilie
Online-ID: 2pq3g55
Referenznummer: OBGC202603241605041829df5261683
Finde Angebote wie dieses
Günstige Immobilienfinanzierung einfach online berechnen
Persönliches Angebot berechnenWarum sehe ich diese Werbung? – Du siehst diese Werbung basierend auf Deiner Navigation auf unserer Website und der von Dir verwendeten Suchkriterien.
Diese Werbung wird bezahlt von durchblicker
Werbung melden
Hier geht es zu unserem Impressum, den Allgemeinen Geschäftsbedingungen, den Hinweisen zum Datenschutz und nutzungsbasierter Online-Werbung.