
TAG Wohnen & Service GmbH
Frau Nele Isenberg
+49 ···
Nr. anzeigenPreise & Kosten
Kaution
640,00 €
Warum sehe ich diese Anzeige? – Du siehst diese Anzeige basierend auf Ihrer Navigation auf unserer Website und den Suchkriterien, die du verwendet hast.
Lage
Lauta ist das grüne Tor zum Lausitzer Seenland. Die rund 8.500 Einwohner zählende Stadt ist von Wäldern, Heidelandschaft,
sanften Hügeln und viel Wasser umgeben. Zahlreiche Rad- und Wanderwege laden genauso zur aktiven Erholung ein wie der
nahe gelegene Senftenberger See. Die unter Denkmalschutz stehende Gartenstadt...
Die Wohnung
Wohnungslage
1. Geschoss
Bezug
Ab sofort
Wohnanlage
Energie & Heizung
Warum sehe ich diese Anzeige? – Du siehst diese Anzeige basierend auf Ihrer Navigation auf unserer Website und den Suchkriterien, die du verwendet hast.
Energieausweis: für diesen Gebäudetyp nicht notwendig
Details
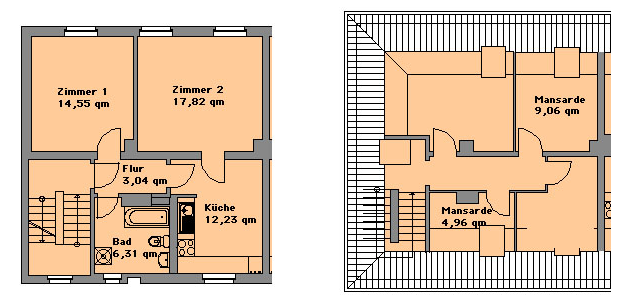
Objektbeschreibung
Unser Mietobjekt befindet sich im Dachgeschoss eines Mehrfamilienhauses mit drei Mietparteien und ist Teil des Ensembles der Gartenstadt Lauta. Die Fassade mit grünen Fensterläden und grüner Hauseingangstür wirkt freundlich und einladend. Das Haus ist unterkellert. Der Wohnung ist ein separates Gartenabteil zugeordnet.
Ausstattung
Herzlich Willkommen. Nachfolgend die Ausstattungsmerkmale der Wohnung:
- Bad mit Fenster und neuen Sanitär Anlagen
- keine Durchgangszimmer
- Wände/Decken - Raufaser (alles neu tapeziert)
- Küche mit Anschluss für den E-Herd
- CV-Belag in ansprechender Holzoptik
- eigener Mieterkeller und Garten
Preisinformation
Nettokaltmiete: 320,00 EUR
Weitere Informationen
Sonstiges
Finden Sie Ihr neues Zuhause unter www.tag-wohnen.de und vereinbaren Sie Ihren persönlichen Besichtigungstermin. Wir freuen uns auf Ihre Anfrage.
Profitieren Sie als TAG Wohnen-Mieter von unseren Partnerangeboten und sichern Sie sich viele Sonderrabatte und günstige Konditionen u.a. in den Bereichen...
Anbieter der Immobilie
Online-ID: 2pq3853
Referenznummer: 1034/47625/1011
Finde Angebote wie dieses
Hier geht es zu unserem Impressum, den Allgemeinen Geschäftsbedingungen, den Hinweisen zum Datenschutz und nutzungsbasierter Online-Werbung.