
HBS Projekt-Management GmbH
Herr Michael Lorenz
(+4 ···
Nr. anzeigenPreise & Kosten
Kaution
6600
Provision für Mieter
provisionsfrei
Warum sehe ich diese Anzeige? – Du siehst diese Anzeige basierend auf Ihrer Navigation auf unserer Website und den Suchkriterien, die du verwendet hast.
Lage
Innenstadtlage
Fussgängerzone
250 m vom Rathaus entfernt
Gut mit dem PKW für Lieferungen anfahrbar.
Büro-/Praxisfläche
Kategorie
Bürofläche
Baujahr
1995
Bezug
01.05.2026
Mindestmietdauer
36 Monate
Geschoss
Erdgeschoss
Energie & Heizung
Warum sehe ich diese Anzeige? – Du siehst diese Anzeige basierend auf Ihrer Navigation auf unserer Website und den Suchkriterien, die du verwendet hast.
Weitere Energiedaten
Energieträger
Fernwärme
Heizungsart
Zentralheizung
Details
Objektbeschreibung
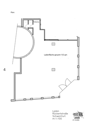
Zur Vermietung kommt eine Gewerbefläche für Büro/Praxis/Kanzlei/Einzelhandel in attraktiver Lage Schweinfurts am Ostrand der Fußgängerzone 250 m vom Rathaus entfernt.
Ebenfalls wäre ein Cafe-/Gastrokonzept mit geringer Küchennutzung umsetzbar.
Mit 22 m Schaufensterlänge über Eck sind die Räume innen hell und lassen...
Anbieter der Immobilie
Online-ID: 2pq2v56
Referenznummer: 1195
Finde Angebote wie dieses
Hier geht es zu unserem Impressum, den Allgemeinen Geschäftsbedingungen, den Hinweisen zum Datenschutz und nutzungsbasierter Online-Werbung.