
WAV Gemeinnützige Bau- und Siedlungsgenossenschaft "Waldviertel"
WAV Gemeinnützige Bau- u. Siedlungsgenossenschaft
+43 ···
Nr. anzeigenPreise & Kosten
Kaution
4.000,00
Warum sehe ich diese Anzeige? – Du siehst diese Anzeige basierend auf Ihrer Navigation auf unserer Website und den Suchkriterien, die du verwendet hast.
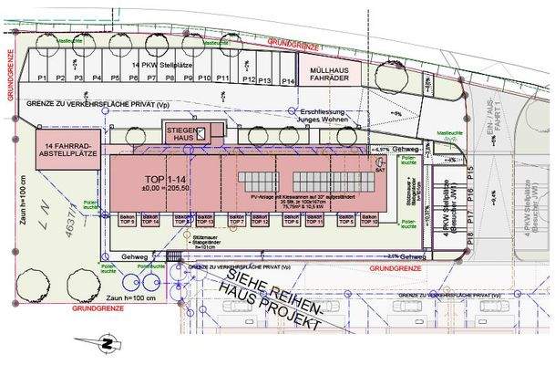
Wohnanlage
Energie & Heizung
Warum sehe ich diese Anzeige? – Du siehst diese Anzeige basierend auf Ihrer Navigation auf unserer Website und den Suchkriterien, die du verwendet hast.
Heizwärmebedarf (HWB)
17,40 kWh/(m²·a)
Details
Objektbeschreibung
Kurzbeschreibung
WAV | Zistersdorf | JW 1 | Top 5
Objekt
Das Höchstalter für die Anmietung der Wohneinheit beträgt 35 Jahre zum Zeitpunkt des Abschlusses des Mietvertrags...
Ausstattung
Abstellraum, 2 Zimmer, kontroll. Wohnraumlüftung, Heizung: Gasheizung, Trockenraum, Parkplatz, Kinderwagen/Fahrradraum, Gemeinschaftsgarten, Balkon
Preisinformation
Miete inkl. Betriebskosten u. USt, exkl. Strom/Heizung
Weitere Informationen
Sonstiges
maximaler Wohnzuschuss: EUR 234,-
Stichworte
Wohnungsnr.: 5
Online-ID: 2pq2653
Referenznummer: WAV | Zistersdorf | JW 1 | Top 5
Finde Angebote wie dieses
Hier geht es zu unserem Impressum, den Allgemeinen Geschäftsbedingungen, den Hinweisen zum Datenschutz und nutzungsbasierter Online-Werbung.