
Bauwerk Chemnitz Immobilien GmbH
+49 ···
Nr. anzeigenPreise & Kosten
Provision für Käufer
Bitte beachte, das Angebot kann bei Vertragsabschluss die Zahlung einer Provision beinhalten. Weitere Informationen erhältst Du vom Anbieter.
Lage
Das ca. 1000 qm große Teil-Grundstück befindet sich im nördlichen Zwickauer Ortsteil Weißenborn, der zu den ruhigen, überwiegend von Wohnbebauung geprägten Lagen der Stadt gehört. Die Umgebung ist durch Einfamilienhäuser, viel Grün und eine angenehme Nachbarschaftsstruktur gekennzeichnet, was den Stadtteil besonders für...
Das Haus
Kategorie
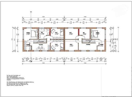
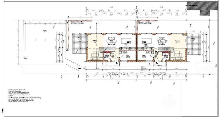
Doppelhaushälfte
Geschosse
2 Geschosse
Energie & Heizung
Warum sehe ich diese Anzeige? – Du siehst diese Anzeige basierend auf Ihrer Navigation auf unserer Website und den Suchkriterien, die du verwendet hast.
Weitere Energiedaten
Haustyp
Massivhaus
Heizungsart
Fußbodenheizung, Luft-/Wasser-Wärmepumpe
Details
Weitere Informationen
Das Haus - bezugsfertig
Bauwerk Chemnitz baut für Sie ein qualitativ hochwertiges Massivhaus, das all Ihre Wünsche erfüllt und zudem sehr hochwertig und modern ausgestattet ist.
Die angebotene Doppelhaushälfte verfügt über 5 Zimmer. In der Erdgeschossebene gelangen Sie vom einladenden Flur aus in den lichtdurchfluteten...
Anbieter der Immobilie
Online-ID: 2pq2557
Finde Angebote wie dieses
Hier geht es zu unserem Impressum, den Allgemeinen Geschäftsbedingungen, den Hinweisen zum Datenschutz und nutzungsbasierter Online-Werbung.