

Living Fertighaus GmbH Vertriebsbüro
Herr/Frau Oliver Zschörnig
017 ···
Nr. anzeigenPreise & Kosten
Provision für Käufer
provisionsfrei
Lage
Das Grundstück für dieses Hausprojekt befindet sich in Wermsdorf, angenehm und ruhig gelegen. Einkaufsmöglichkeiten, soziale Einrichtungen und öffentlicher Verkehr sind ortsüblich erreichbar.
Doch nicht ganz Eure Wunschlage? Das ist aber kein Problem. Wir sollten uns einfach über Eure Wünsche unterhalten. Zurzeit...
Das Haus
Baujahr
2026
Energie & Heizung
Warum sehe ich diese Anzeige? – Du siehst diese Anzeige basierend auf Ihrer Navigation auf unserer Website und den Suchkriterien, die du verwendet hast.
Energieausweistyp
Bedarfsausweis
Gebäudetyp
Wohngebäude
Baujahr laut Energieausweis
2026
Wesentliche Energieträger
Strom
Effizienzklasse
A+
Endenergiebedarf
18,00 kWh/(m²·a)
Weitere Energiedaten
Haustyp
Fertighaus, KfW 40
Heizungsart
Luft-/Wasser-Wärmepumpe
Details
Objektbeschreibung
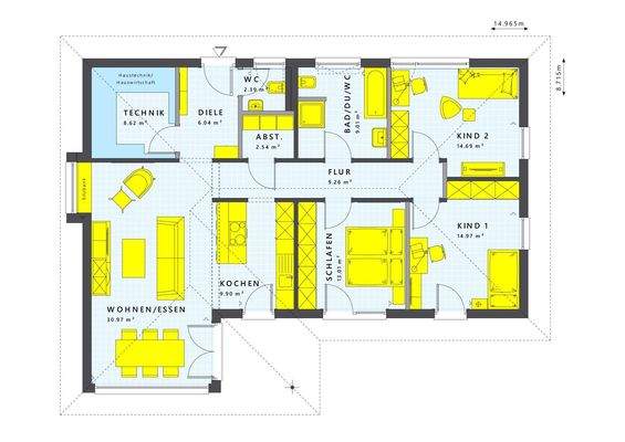
Du möchtest dein neues Zuhause grenzenlos genießen, ohne Schwellen und eben leben? Aber du willst dabei auf nichts verzichten? Das musst du auch nicht! Im SOLUTION 110 kannst du all deine Ideen und Vorstellungen ausleben. Große Gemeinschaftsbereiche, drei kuschelige Schlafräume und intelligente Stauflächen machen diesen...
Ausstattung
?? Living Haus - Mehr als ein Haus, dein Zuhause! ??
Bauen kann kompliziert sein - muss es aber nicht! Mit Living Haus bekommst du alles, was du brauchst, direkt mit dazu. Keine versteckten Kosten, kein Kleingedrucktes - einfach ein perfekt durchdachtes Zuhause. Von außen fix und fertig, von innen individuell - genau...
Weitere Informationen
Sonstiges
"Das hier angebotene Grundstück ist im obigen Preis eingerechnet.
Zusätzliche Baunebenkosten inkl. Maklerprovision müssen noch hinzugerechnet werden, hierüber beraten wir gern.
Wir bieten auch interessante Finanzierungsmöglichkeiten inklusive Beantragung aller Fördermittel!
Die Hausabbildungen und...
Anbieter der Immobilie
Living Fertighaus GmbH Vertriebsbüro
Chopinstrasse 25, 04103 Leipzig

Online-ID: 2ppwh57
Referenznummer: 30764-7154
Finde Angebote wie dieses
Hier geht es zu unserem Impressum, den Allgemeinen Geschäftsbedingungen, den Hinweisen zum Datenschutz und nutzungsbasierter Online-Werbung.