

Massivhaus M-V GmbH
Herr Martin Hardtke
+49 ···
Nr. anzeigenPreise & Kosten
Provision für Käufer
provisionsfrei
Lage
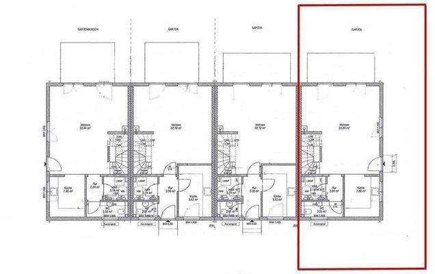
So ein Traum von Haus braucht auch ein passendes Grundstück. Hierbei handelt es um ein Reihenendhaus mit einem Grundstück von 114 m² zzgl. einem Anteil an gemeinschaftlicher Zuwegung und Parkplatz im schönen Seebad Lubmin.
Der Kaufpreis des Grundstückes ist im Angebot bereits enthalten!
Die Arbeiten für...
Das Haus
Geschosse
2 Geschosse
Baujahr
2026
Energie & Heizung
Warum sehe ich diese Anzeige? – Du siehst diese Anzeige basierend auf Ihrer Navigation auf unserer Website und den Suchkriterien, die du verwendet hast.
Weitere Energiedaten
Haustyp
Massivhaus
Energieträger
Elektro
Heizungsart
Fußbodenheizung, Luft-/Wasser-Wärmepumpe
Details
Objektbeschreibung
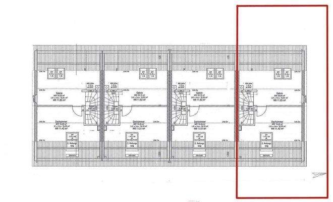
Ein Reihenhaus ist eine optimale Lösung für alle, die sich genügend Raum zum Wohnen wünschen, aber zugleich in einer Region bauen in der Grundstücke knapp sind. Das Reihenhaus Mainz 128 wird in klassischer Weise als Kombination von vier Reihenhäusern gebaut. Vier Familien leben quasi unter einem Dach, Sie können von der guten...
Ausstattung
inkl. Wärmepumpe
inkl. 3-fach Klimaschutzfenster
inkl. kontrolliertes Wohnungslüftungssystem
inkl. Fußbodenheizung und Handtuchheizkörper im Bad
inkl. Rollläden
inkl. Verwendung von Markenprodukten
inkl. Finanzierungsservice
inkl. schlüsselfertiger, massiver Erstellung (1)
inkl. ausführlicher...
Weitere Informationen
Stichworte
Sonstiges/Wohnen: Galerie
Anbieter der Immobilie
Massivhaus M-V GmbH
Am Elisenpark 34, 17491 Greifswald

Online-ID: 2ppw853
Referenznummer: Lubmin-A-REH_re
Finde Angebote wie dieses
Hier geht es zu unserem Impressum, den Allgemeinen Geschäftsbedingungen, den Hinweisen zum Datenschutz und nutzungsbasierter Online-Werbung.