
Barner Immobilien
Markus Barner
075 ···
Nr. anzeigenPreise & Kosten
Provision für Käufer
3,57%
Lage
Weingarten überzeugt als attraktiver Wohnstandort in der Region Oberschwaben mit einer hervorragenden Infrastruktur und einem hohen Freizeitwert. Die lebendige Stadt bietet alle Einrichtungen des täglichen Bedarfs in unmittelbarer Nähe - von Supermärkten und Fachgeschäften über Apotheken bis hin zu einer Vielzahl an...
Die Wohnung
Bezug
nach Vereinbarung
Wohnanlage
Energie & Heizung
Warum sehe ich diese Anzeige? – Du siehst diese Anzeige basierend auf Ihrer Navigation auf unserer Website und den Suchkriterien, die du verwendet hast.
Energieausweistyp
Bedarfsausweis
Gebäudetyp
Wohngebäude
Wesentliche Energieträger
Holzpellets
Gültigkeit
11.12.2025 bis 10.12.2035
Effizienzklasse
B
Endenergiebedarf
62,50 kWh/(m²·a)
Weitere Energiedaten
Energieträger
Pellets
Heizungsart
Fußbodenheizung
Details
Objektbeschreibung
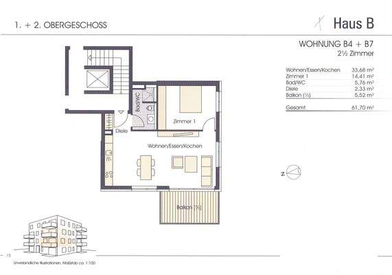
Diese neuwertige 2 1/2 Zimmer-Wohnung überzeugt auf 62 m² mit einer gehobenen Ausstattung und einem durchdachten Grundriss, der Wohnkomfort auf hohen Niveau bietet. Stilvoller Parkettboden in den Wohn- und Schlafbereichen sowie hochwertige Fliesenflächen in den Nasszonen verleihen der Wohnung eine stilvolle und zeitgemäße...
Ausstattung
Einbauküche, großer Süd-Westbalkon, Aufzug, Parkettböden, hochwertige Badausstattung mit Badewanne, Handtuchwärmer und Dusche, Mückenschutz an den Fenster, elektrische Rollläden und Jalousien, großer Süd-West-Balkon mit großer Schiebetür und Markise, Kellerraum, gemeinschaftliche Räume, wie Fahrrad-, Wasch- und Müllraum sind...
Preisinformation
1 Tiefgaragenstellplatz, Kaufpreis: 25.000,00 EUR
Weitere Informationen
Stichworte
Tiefgarage vorhanden, Anzahl der Schlafzimmer: 1, Anzahl der Badezimmer: 1, Anzahl Balkone: 1, Bundesland: Baden-Württemberg, Distanz zum Flughafen: 25.58, Distanz zum Hauptbahnhof: 2.58, Distanz zum Bus: 0.49
Anbieter der Immobilie
Barner Immobilien
Eisenbahnstr. 24, 88212 Ravensburg
Online-ID: 2ppsn55
Referenznummer: MB-1013
Finde Angebote wie dieses
Hier geht es zu unserem Impressum, den Allgemeinen Geschäftsbedingungen, den Hinweisen zum Datenschutz und nutzungsbasierter Online-Werbung.