

ICB GmbH Immobilien Consulting Berlin
Herr/Frau Team ICB Berlin
030 ···
Nr. anzeigenPreise & Kosten
Provision für Käufer
3,57% Käufercourtage inkl. MwSt
Lage
Kurfürstendamm, Pariser Straße und Ludwigkirchplatz sind die wohlklingenden Straßennamen in unmittelbarer Umgebung. Diese bilden, zusammen mit der Pfalzburger Straße, das who is who der Berliner Straßen und Quartiere in der City-West.
Im Zentrum dieser begehrten Mikrolage steht die imposante Kirche St. Ludwig, die...
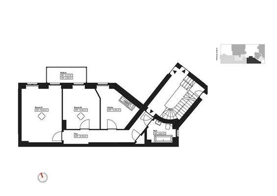
Die Wohnung
Wohnungslage
2. Geschoss
Bezug
sofort
Derzeitige Nutzung
frei
Wohnanlage
Energie & Heizung
Warum sehe ich diese Anzeige? – Du siehst diese Anzeige basierend auf Ihrer Navigation auf unserer Website und den Suchkriterien, die du verwendet hast.
Energieausweistyp
Bedarfsausweis
Gebäudetyp
Wohngebäude
Wesentliche Energieträger
GAS
Gültigkeit
10.07.2025 bis 01.07.2035
Effizienzklasse
D
Endenergiebedarf
108,30 kWh/(m²·a)
Weitere Energiedaten
Energieträger
Gas
Heizungsart
Etagenheizung
Details
Objektbeschreibung
Wer sich für die Architektur eines Altbaus begeistert, dessen Erwartungen werden, gleich nach Betreten des Portals, mit mondäner Opulenz übertroffen. Das Foyer gleicht einer Lobby mit Stuckornamentik, Fresken und Podesten, Säulenbögen und Malereien.
Entlang dieses eleganten Entrees gelangen Sie zum Gartenhaus, das Sie...
Ausstattung
Auch die Bestandswohnungen überzeugen durch ihre altbautypische Substanz. Parkett- bzw. Dielenböden, Holzkassettentüren, Altbaufenster mit historischer Aufteilung sind die stilgebenden Merkmale. Hier und da sind in einigen Wohnungen noch Stuckelemente vorhanden.
Die Bestandswohnungen weisen unterschiedliche Ausstattung...
Weitere Informationen
Sonstiges
Die in dieser Präsentation abgebildeten Fotos sind aktuelle Originalaufnahmen aus diesem Objekt bzw. Ansichten vor der Sanierung/Renovierung und Balkonneubau.
Zum Schutz der Privatsphäre liegt uns von den vermieteten Wohnungen nur reduziertes Bildmaterial vor. Die Wohnungen können jedoch, mit etwas...
Dokumente
Anbieter der Immobilie
ICB GmbH Immobilien Consulting Berlin
Niebuhrstraße 72, 10629 Berlin

Online-ID: 2ppqp52
Referenznummer: PfalzW24G
Finde Angebote wie dieses
Hier geht es zu unserem Impressum, den Allgemeinen Geschäftsbedingungen, den Hinweisen zum Datenschutz und nutzungsbasierter Online-Werbung.