
Immowerk42 GmbH
Frau Britta Stein
004 ···
Nr. anzeigenDieses Angebot ist Teil des Neubauprojekts
NORDHEIDE LIVING
Preise & Kosten
Provision für Käufer
provisionsfrei
Lage
DIE LAGE: NORDHEIDE LIVING IN BUCHHOLZ
Buchholz - Das charmante Tor zur Hansestadt Hamburg
Nordheide Living entsteht in einer der begehrtesten Wohnlagen von Buchholz: ruhig, zentral und eingebettet in eine gewachsene, niveauvolle Nachbarschaft. Hier genießen Sie die perfekte Symbiose aus kleinstädtischem Charme und der...
Die Wohnung
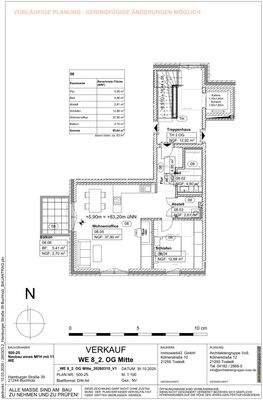
Wohnungslage
2. Geschoss
Wohnanlage
Das Neubauprojekt
Details
Objektbeschreibung
NORDHEIDE LIVING - MODERNES WOHNGLÜCK IN BESTLAGE
Bei der Konzeption von NORDHEIDE LIVING stand eine klare Vision im Fokus: perfekter Wohnkomfort durch moderne Architektur und hochwertige Ausstattung.
? Provisionsfrei: Erwerb direkt vom Bauträger ohne zusätzliche Vermittlungsgebühren.
? Ausführliche persönliche...
Ausstattung
DIE AUSSTATTUNG: PERFEKTION BIS INS DETAIL
Die Liebe zum Detail, die die Architektur von Nordheide Living auszeichnet, setzt sich konsequent im Innenausbau fort. Wir verwenden solide, zeitgemäße Materialien und schaffen in allen Räumen ein Ambiente von zeitloser Eleganz. Hochwertige Badarmaturen namhafter Hersteller sowie...
Weitere Informationen
Sonstiges
ARCHITEKTENHAUS "NORDHEIDE LIVING"
Neuer Wohnraum ist hier gefragt. Umso mehr freuen wir uns, Ihnen das Neubauprojekt "NORDHEIDE LIVING" anbieten zu können. Elf edle Wohneinheiten mit modernen Grundrissen hat das "Architektenbüro Voß" mit viel Liebe zum Detail geplant.
ERDGESCHOSS (mit Terrasse &...
Anbieter der Immobilie
Immowerk42 GmbH
Kötnerstr.10, 21255 Tostedt
Online-ID: 2ppqk52
Referenznummer: 5535
Finde Angebote wie dieses
Weitere Immobilien
Hier geht es zu unserem Impressum, den Allgemeinen Geschäftsbedingungen, den Hinweisen zum Datenschutz und nutzungsbasierter Online-Werbung.