

SCHULTHEISS Wohnbau AG
Frau Boi-Thi Truong
091 ···
Nr. anzeigenDieses Angebot ist Teil des Neubauprojekts
Brauhöfe Erlangen – Premium-Wohnungen & Apartments in Bestlage – ausgezeichnet mit dem Zukunftspreis 2025
Preise & Kosten
Provision für Käufer
provisionsfrei
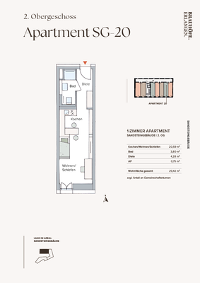
Die Wohnung
Wohnungslage
1. Geschoss
Bezug
06/2028
Derzeitige Nutzung
frei
Wohnanlage
Das Neubauprojekt
Energie & Heizung
Warum sehe ich diese Anzeige? – Du siehst diese Anzeige basierend auf Ihrer Navigation auf unserer Website und den Suchkriterien, die du verwendet hast.
Energieausweistyp
Bedarfsausweis
Gebäudetyp
Wohngebäude
Baujahr laut Energieausweis
2026
Wesentliche Energieträger
Luft-/Wasser-Wärmepumpe
Effizienzklasse
A
Endenergiebedarf
40,50 kWh/(m²·a)
Weitere Energiedaten
Energieträger
Fernwärme
Haustyp
KfW 70
Heizungsart
Fußbodenheizung
Details
Objektbeschreibung
Erleben Sie die gelungene Verbindung von Stadtgeschichte und modernem Lebensstil in den Brauhöfen Erlangen. Auf dem historischen Kitzmann-Areal entstehen hochwertige Mikroapartments und großzügige Stadtwohnungen in bester Lage – ideal für alle, die einzigartigen Wohnwert schätzen.
Das hochwertig sanierte...
Weitere Informationen
Zu Hause in den Brauhöfen
Das Quartier besteht aus drei architektonisch unterschiedlichen Gebäuden, die einen zentralen Innenhof umrahmen. Das markante Sudhaus verleiht dem Ensemble seinen charakteristischen Look. Ergänzt wird das Sudhaus durch das moderne Hofgebäude und das historisch sanierte Sandsteingebäude an der...
Dokumente
Anbieter der Immobilie

Online-ID: 2pppc55
Referenznummer: BTFahrapat20
Finde Angebote wie dieses
Hier geht es zu unserem Impressum, den Allgemeinen Geschäftsbedingungen, den Hinweisen zum Datenschutz und nutzungsbasierter Online-Werbung.