

VON POLL IMMOBILIEN Freiburg - S 2 Immobilien GmbH
Frau Julia Sacher
+49 ···
Nr. anzeigenPreise & Kosten
Provision für Käufer
Käuferprovision beträgt 3,57 % (inkl. MwSt.) des beurkundeten Kaufpreises
Lage
Die Immobilie befindet sich in Freiburg-Herdern, einem der exklusivsten Stadtteile Freiburgs, der durch seine ruhige, grüne Wohnumgebung und gepflegte Wohnstraßen besticht. Herdern vereint auf besondere Weise naturnahe Ruhe mit unmittelbarer Nähe zur Innenstadt und bietet eine außergewöhnliche Lebensqualität...
Das Haus
Kategorie
Einfamilienhaus
Baujahr
1900
Derzeitige Nutzung
vermietet
Energie & Heizung
Warum sehe ich diese Anzeige? – Du siehst diese Anzeige basierend auf Ihrer Navigation auf unserer Website und den Suchkriterien, die du verwendet hast.
Energieausweistyp
Verbrauchsausweis
Gebäudetyp
Wohngebäude
Baujahr laut Energieausweis
1900
Wesentliche Energieträger
OEL
Gültigkeit
bis 02.02.2035
Effizienzklasse
F
Endenergieverbrauch
172,00 kWh/(m²·a)
Weitere Energiedaten
Haustyp
Massivhaus
Energieträger
Öl
Heizungsart
Zentralheizung
Details
Objektbeschreibung
Charmantes Wohnhaus in Toplage von Freiburg-Herdern - vielseitig nutzbar
In einer der begehrtesten Wohnlagen Freiburgs, im beliebten Stadtteil Herdern, befindet sich dieses attraktive Wohnhaus auf einem ca. 416 m² großen Grundstück. Die Immobilie wird derzeit als Dreifamilienhaus genutzt, wurde ursprünglich jedoch als...
Ausstattung
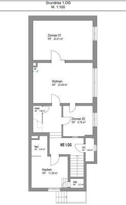
Die Gesamtwohnfläche beträgt ca. 234 qm. Folgend die Aufteilung der aktuellen drei Wohnungen:
Erdgeschoss, 2-Zimmer Wohnung mit ca. 82,46 qm
1.Obergeschoss, 3-Zimmer Wohnung mit ca. 74,38 qm
Dachgeschoss, 4-Zimmer Wohnungen mit ca. 76,70 qm
Die aktuelle Jahresnettokaltmiete beläuft sich auf ca. 27.720...
Weitere Informationen
Sonstiges
Gerne stehen wir Ihnen für weitere Informationen oder zur Vereinbarung eines Besichtigungstermins zur Verfügung. Nutzen Sie diese Gelegenheit, um mehr über die Vorzüge dieser Immobilie zu erfahren und sich selbst ein Bild vor Ort zu machen.
Stichworte
Anzahl der Badezimmer: 3, Anzahl Balkone: 1, Anzahl...
Anbieter der Immobilie
VON POLL IMMOBILIEN Freiburg - S 2 Immobilien GmbH
Konviktstraße 22-24, 79098 Freiburg im Breisgau

Online-ID: 2ppmb52
Referenznummer: 26 022 111
Finde Angebote wie dieses
Hier geht es zu unserem Impressum, den Allgemeinen Geschäftsbedingungen, den Hinweisen zum Datenschutz und nutzungsbasierter Online-Werbung.