
ohne-makler.net - Immobilien selbst vermarkten
Angebot von ak3|architekten, Christof Meyer
Kontaktiere den Anbieter schriftlich, es ist keine Telefonnummer hinterlegt.
Preise & Kosten
Provision für Käufer
provisionsfrei
Abschreibung/Anlage
Denkmalschutz-Afa
Lage
Die Wohnung liegt ruhig und dennoch zentral in der Hartwig-Hesse-Straße, einer beliebten Wohnstraße von Hamburg-Eimsbüttel. Durch die Lage in direkter Nachbarschaft zum Else-Rauch-Platz ist die U-Bahn Lutterothstraße nur einen Katzensprung entfernt. Das Publikum im Haus und im Viertel ist angenehm gemischt. Die...
Die Wohnung
Wohnungslage
4. Geschoss
Bezug
nach Absprache
Wohnanlage
Energie & Heizung
Warum sehe ich diese Anzeige? – Du siehst diese Anzeige basierend auf Ihrer Navigation auf unserer Website und den Suchkriterien, die du verwendet hast.
Energieausweis: für diesen Gebäudetyp nicht notwendig
Weitere Energiedaten
Energieträger
Gas
Heizungsart
Etagenheizung
Details
Objektbeschreibung
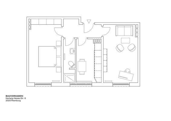
Die komplett sanierte Eigentumswohnung liegt im 4. Obergeschoss eines schönen Jugendstilhauses; sie verfügt über 2 geräumige Zimmer, Flur, eine Wohnküche und ein großzügiges Bad. Die bislang vom Eigentümer genutzte Wohnung liegt in einer Wohnstraße in sonniger Süd-West-Lage. Die Wohnung ist frisch renoviert und sofort...
Ausstattung
Keller, Duschbad, Einbauküche, Parkett, Fliesen
Bemerkungen:
Die Eigentumswohnung befindet sich in der Endetage eines denkmalgeschützten, sanierten Wohnhauses. Sie überzeugt mit ihren aus der Bauzeit stammenden und sorgfältig aufgearbeiteten originalen Stilelementen. Mit dem Denkmalstatus gehen erhebliche...
Weitere Informationen
Sonstiges
Heizungsart: Etagenheizung
Energieträger: Gas
Der Verkauf erfolgt provisionsfrei von privat, daher bitte keine Makleranfragen. Fordern Sie gerne das ausführliche Exposé an; dazu hinterlassen Sie bitte Ihre komplette Kontaktdaten (Name, Adresse, E-Mail-Adresse, Rufnummer) im...
Anbieter der Immobilie
ohne-makler.net - Immobilien selbst vermarkten
Humboldtstr. 25 A, 21509 Glinde
Angebot von ak3|architekten, Christof Meyer
Dein Ansprechpartner
Kontaktiere den Anbieter schriftlich, es ist keine Telefonnummer hinterlegt.
Online-ID: 2ppjc57
Referenznummer: 439191
Finde Angebote wie dieses
Hier geht es zu unserem Impressum, den Allgemeinen Geschäftsbedingungen, den Hinweisen zum Datenschutz und nutzungsbasierter Online-Werbung.