
ohne-makler.net - Immobilien selbst vermarkten
Angebot von BANSE Objektverwaltung GmbH
038 ···
Nr. anzeigenPreise & Kosten
nicht in Warmmiete enthalten
Kaution
5.250,00
Warum sehe ich diese Anzeige? – Du siehst diese Anzeige basierend auf Ihrer Navigation auf unserer Website und den Suchkriterien, die du verwendet hast.
Lage
Neben der alten Spielkartenfabrik ist das Haus von weiteren historischen aber auch modernen Architektenhäusern umgeben. Es befindet sich in einer ruhigen Nebenstraße der Stralsunder Altstadt.
Mit einem Fußweg von zirka 10 Minuten erreichen Sie den Stralsunder Hauptbahnhof, den Alten Markt oder die Hafeninsel. Am Neuen...
Die Wohnung
Wohnungslage
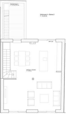
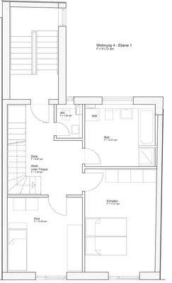
3. Geschoss
Bezug
01.05.2026
Wohnanlage
Energie & Heizung
Warum sehe ich diese Anzeige? – Du siehst diese Anzeige basierend auf Ihrer Navigation auf unserer Website und den Suchkriterien, die du verwendet hast.
Energieausweis: für diesen Gebäudetyp nicht notwendig
Weitere Energiedaten
Energieträger
Gas
Heizungsart
Zentralheizung
Details
Objektbeschreibung
360°-Rundgang: https://www.ohne-makler.net/panorama/206950/
Die Maisonettewohnung befindet sich in einem Neubau aus 2021 mit insgesamt 4 Wohneinheiten.
Über ca. 52 m² verteilen sich im 3 .OG der Wohnung das Schlafzimmer, das Kinderzimmer, das Badezimmer, das Gäste-WC, der Flur und eine kleine Abstellkammer unter der...
Ausstattung
Terrasse, Garten, Keller, Dachterrasse, Vollbad, Duschbad, Gäste-WC, Fliesen, Sonstiges (s. Text)
Bemerkungen:
Neben dem Abstellraum im Erdgeschoss können Fahrradständer im EG, im Hof sowie im
Keller des Nachbarhauses genutzt werden. Ein Grillplatz und Spielmöglichkeiten für Kinder befinden sich im grünen...
Preisinformation
1 Garagenstellplatz, Miete: 160,00 EUR
Nettokaltmiete: 1.750,00 EUR
Weitere Informationen
Sonstiges
Heizungsart: Zentralheizung
Energieträger: Gas
Für die Vereinbarung von Besichtigungsterminen nutzen Sie bitte das Kontaktanzeigenformular unter Angabe einer Rückrufnummer.
Am schnellsten kann Ihre Anfrage bearbeitet werden, wenn Sie über das Kontaktformular Ihren vollständigen Namen, Adresse und...
Dokumente
Anbieter der Immobilie
ohne-makler.net - Immobilien selbst vermarkten
Humboldtstr. 25 A, 21509 Glinde
Online-ID: 2ppfu57
Referenznummer: 206950
Finde Angebote wie dieses
Hier geht es zu unserem Impressum, den Allgemeinen Geschäftsbedingungen, den Hinweisen zum Datenschutz und nutzungsbasierter Online-Werbung.