
IMMOHANSA Immobilien GmbH & Co. KG
Frau Leoni Schulze
004 ···
Nr. anzeigenPreise & Kosten
Provision für Käufer
3,57 %
Lage
Makrolage - Adendorf / Landkreis Lüneburg
Adendorf liegt unmittelbar nördlich der Hansestadt Lüneburg und zählt zu den gefragten Wohnlagen im direkten Umland. Die Nähe zur Universitätsstadt Lüneburg, kombiniert mit einer sehr guten Verkehrsanbindung, macht den Standort besonders attraktiv. Über die B4 sowie die...
Das Haus
Kategorie
Einfamilienhaus
Baujahr
1960
Bezug
sofort
Energie & Heizung
Warum sehe ich diese Anzeige? – Du siehst diese Anzeige basierend auf Ihrer Navigation auf unserer Website und den Suchkriterien, die du verwendet hast.
Energieausweistyp
Bedarfsausweis
Gebäudetyp
Wohngebäude
Baujahr laut Energieausweis
2023
Wesentliche Energieträger
GAS
Gültigkeit
bis 03.03.2036
Effizienzklasse
F
Endenergiebedarf
182,69 kWh/(m²·a)
Weitere Energiedaten
Energieträger
Gas
Heizungsart
Zentralheizung
Details
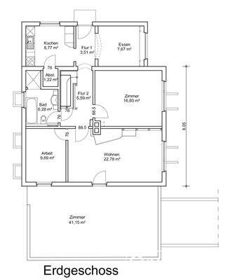
Objektbeschreibung
Zum Verkauf steht ein attraktives Grundstück mit Entwicklungspotenzial in ruhiger Wohnlage von Adendorf, unmittelbar vor den Toren von Lüneburg. Das Gesamtgrundstück umfasst rund 2.400 m² und besteht aus einem Vordergrundstück mit Bestandsimmobilie sowie einem dahinterliegenden Baugrundstück in zweiter Reihe.
Auf dem...
Ausstattung
. Großzügiges Gesamtgrundstück mit ca. 2.400 m² Fläche
. Bauvorbescheid für zwei Mehrfamilienhäuser mit jeweils drei Wohneinheiten
. Großer Garten auf dem ca. 900 m² Vordergrundstück
. Beheiztes Kellergeschoss mit zusätzlichem Duschbad (neu 2024)
. Neue Gasheizung (2023)
. Teilmodernisierte Immobilie mit...
Preisinformation
2 Stellplätze
2 Tiefgaragenstellplätze
Weitere Informationen
Sonstiges
Sie erreichen unser Büro unter (04131) 776 442.
Ihr direkter Ansprechpartner: Frau Leoni Schulze
Unsere Homepage finden Sie unter www.immohansa.de
Bitte haben Sie Verständnis dafür, dass wir Ihre Anfrage nach einem ausführlichen Exposé mit genauer Lage des Objektes, Grundrisszeichnungen...
Anbieter der Immobilie
IMMOHANSA Immobilien GmbH & Co. KG
Bunsenstr. 8, 21365 Adendorf
Online-ID: 2ppd952
Referenznummer: IH51690
Finde Angebote wie dieses
Hier geht es zu unserem Impressum, den Allgemeinen Geschäftsbedingungen, den Hinweisen zum Datenschutz und nutzungsbasierter Online-Werbung.