
IC IMMOCONSULT e.K.
Herr Ron Kaufmann
+49 ···
Nr. anzeigenPreise & Kosten
Provision für Mieter
provisionsfrei
Warum sehe ich diese Anzeige? – Du siehst diese Anzeige basierend auf Ihrer Navigation auf unserer Website und den Suchkriterien, die du verwendet hast.
Lage
Das Objekt befindet sich in Leipziger Top-Lage - im beliebten Musikviertel - direkt am Zentrum und doch im Grünen.
Dieser Stadtteil ist eines der bekanntesten und liegt südlich der Innenstadt. Er zeichnet sich durch eine lebendige Atmosphäre mit zahlreichen Geschäften, Einkaufsmöglichkeiten, Bäcker, Imbissen...
Büro-/Praxisfläche
Kategorie
Bürofläche
Bezug
01.06.2026
Geschoss
1. Geschoss
Energie & Heizung
Warum sehe ich diese Anzeige? – Du siehst diese Anzeige basierend auf Ihrer Navigation auf unserer Website und den Suchkriterien, die du verwendet hast.
Weitere Energiedaten
Energieträger
Fernwärme
Heizungsart
Zentralheizung
Details
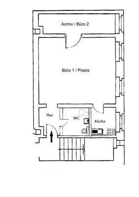
Objektbeschreibung
Die zur Vermietung stehende Souterrain-Gewerbefläche befindet sich im schönen Musikviertel.
Die Immobilie verfügt insgesamt über 2 Räume, die flexibel als Büro-/Praxis- oder Besprechungsräume genutzt werden können.
Die Räumlichkeiten überzeugen durch ihre helle und freundliche Atmosphäre.
Die modernen...
Ausstattung
- 2 Räume
- Zentralheizung
- Videosprechanlage
- EDV Verkabelung
- schmiedeeiserne Fenstergitter zur zusätzlichen Sicherheit
- Fliesenboden
- ca. 2,60 m Raumhöhe
- inkl. EBK
- WC mit Rainshower-Dusche
- Kellerabteil
Weitere Informationen
Sonstiges
Die von uns gemachten Angaben haben wir nach bestem Wissen und Gewissen nach Informationen des Vermieters/Verkäufers und den uns übergebenen Informationen zusammengestellt. Eine Gewähr für diese Angaben können wir nicht übernehmen.
Wichtige Zahlen und Informationen sind am Objekt zu...
Anbieter der Immobilie
IC IMMOCONSULT e.K.
Hillerstraße 3, 04109 Leipzig
Online-ID: 2ppcv52
Referenznummer: 407g12#yWqe1d
Finde Angebote wie dieses
Hier geht es zu unserem Impressum, den Allgemeinen Geschäftsbedingungen, den Hinweisen zum Datenschutz und nutzungsbasierter Online-Werbung.