
team19 Immobilien GmbH
Herr Paul Bichelhuber
+43 ···
Nr. anzeigenPreise & Kosten
Provision für Käufer
Bitte beachte, das Angebot kann bei Vertragsabschluss die Zahlung einer Provision beinhalten. Weitere Informationen erhältst Du vom Anbieter.
Lage
Die Wohnung befindet sich in einer zentralen Lage im 3. Bezirk Wiens, genauer gesagt im Fasanviertel, nahe dem bekannten Schloss Belvedere. Sie liegt im Nordostsüden und bietet somit eine gute Mischung aus Sonnenlicht und Schatten. In unmittelbarer Nähe befinden sich der Schweizergarten und der St. Marx-Park, die zu...
Die Wohnung
Wohnungslage
4. Geschoss
Bezug
ab sofort
Wohnanlage
Energie & Heizung
Warum sehe ich diese Anzeige? – Du siehst diese Anzeige basierend auf Ihrer Navigation auf unserer Website und den Suchkriterien, die du verwendet hast.
Heizwärmebedarf (HWB)
71,50 kWh/(m²·a)
Gesamtenergieeffizienz (fGEE)
1,85
Weitere Energiedaten
Energieträger
Gas
Heizungsart
Fußbodenheizung, Zentralheizung
Details
Objektbeschreibung
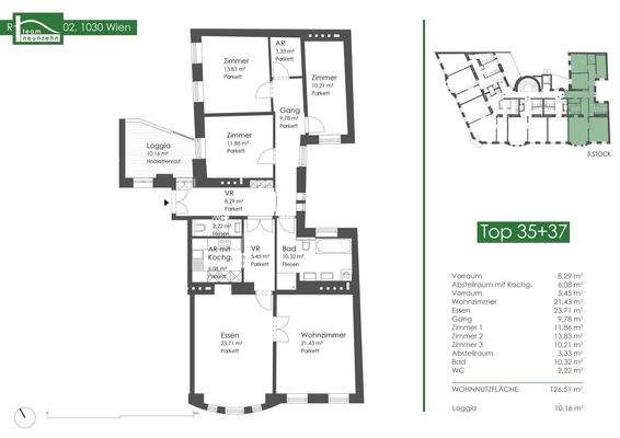
Exklusive, große Stadtwohnung in Top-Lage - Nobles Wohnen auf 126m² + Loggia und hochwertiger Ausstattung!
Erleben Sie die perfekte Kombination aus urbanem Wohnen und grüner Oase in dieser traumhaften Altbauwohnung in 1030 Wien, welche mittels Personenaufzug erschlossen ist. Die Wohnung bietet nicht nur...
Weitere Informationen
Stichworte
Nord-Balkon/Terrasse, Nutzfläche: 136,67 m², Gesamtfläche: 136,66 m², Freifläche: 10,17 m², Anzahl der Badezimmer: 1, Anzahl der separaten WCs: 2, Anzahl Loggias: 1, Balkon-Terrassen-Fläche: 10,16 m², Kellerfläche: 3,37 m², Bundesland: Wien, 7 Etagen, Wohnungsnr.: 35-37, modernisiert: 2019
Anbieter der Immobilie
team19 Immobilien GmbH
Handelskai 94-96/21. Stock, 1200 BRIGITTENAU
Online-ID: 2pp8x52
Referenznummer: OBGC2026032419374580512036b10c1
Finde Angebote wie dieses
Günstige Immobilienfinanzierung einfach online berechnen
Persönliches Angebot berechnenWarum sehe ich diese Werbung? – Du siehst diese Werbung basierend auf Deiner Navigation auf unserer Website und der von Dir verwendeten Suchkriterien.
Diese Werbung wird bezahlt von durchblicker
Werbung melden
Hier geht es zu unserem Impressum, den Allgemeinen Geschäftsbedingungen, den Hinweisen zum Datenschutz und nutzungsbasierter Online-Werbung.