

Engel & Völkers
093 ···
Nr. anzeigenPreise & Kosten
Provision für Käufer
3,57 % inkl. gesetzlicher MwSt.
Lage
Die Immobilie befindet sich in Erlenbach bei Marktheidenfeld, einer charmanten Gemeinde im unterfränkischen Landkreis Main-Spessart. Eingebettet in die idyllische Weinlandschaft des Maintals, bietet Erlenbach eine gelungene Kombination aus naturnahem Wohnen und guter Anbindung an die umliegenden Städte.
Der Ort...
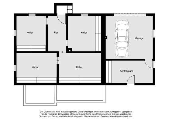
Das Haus
Kategorie
Mehrfamilienhaus
Baujahr
1939
Bezug
nach Absprache
Energie & Heizung
Warum sehe ich diese Anzeige? – Du siehst diese Anzeige basierend auf Ihrer Navigation auf unserer Website und den Suchkriterien, die du verwendet hast.
Energieausweistyp
Bedarfsausweis
Gebäudetyp
Wohngebäude
Wesentliche Energieträger
Strom
Gültigkeit
27.08.2025 bis 26.08.2035
Effizienzklasse
B
Endenergiebedarf
51,10 kWh/(m²·a)
Weitere Energiedaten
Energieträger
Elektro
Heizungsart
offener Kamin
Details
Objektbeschreibung
Dieses massiv gebaute und fortlaufend modernisierte Einfamilienhaus vereint Großzügigkeit, Flexibilität und Wohnkomfort in ruhiger Lage von Erlenbach b. Marktheidenfeld. Auf rund 225 m² Wohnfläche und einem sonnigen 816 m² großen Grundstück eröffnen sich vielfältige Nutzungsmöglichkeiten - ideal für Familien...
Preisinformation
3 Carportplätze
Weitere Informationen
Sonstiges
Courtagepassus:
Der Makler-Vertrag mit uns und/oder unserem Beauftragten kommt durch die Bestätigung der Inanspruchnahme unserer Maklertätigkeit in Textform zustande, wie z.B. insbesondere die Unterschrift des Suchkundenvertrages und/oder des Objekt-Exposés. Die Höhe der Courtage richtet sich nach den ab...
Anbieter der Immobilie
Online-ID: 2pp8p56
Referenznummer: EV-3677
Finde Angebote wie dieses
Hier geht es zu unserem Impressum, den Allgemeinen Geschäftsbedingungen, den Hinweisen zum Datenschutz und nutzungsbasierter Online-Werbung.