

Utsch GmbH - Freie Handelsvertretung der Living Fertighaus GmbH
Herr/Frau Matthias Utsch
017 ···
Nr. anzeigenPreise & Kosten
Provision für Käufer
Bitte beachte, das Angebot kann bei Vertragsabschluss die Zahlung einer Provision beinhalten. Weitere Informationen erhältst Du vom Anbieter.
Lage
Dein zukünftiges Zuhause befindet sich in Bonn Holzlar, einem lebendigen Stadtteil mit einem hervorragenden Angebot für Familien, Naturliebhaber und Pendler. In Bonn findest du zahlreiche Schulen und Kindergärten, die eine hochwertige Bildung sicherstellen. Die Grundschulen und weiterführenden Schulen sind gut erreichbar und...
Das Haus
Kategorie
Einfamilienhaus
Energie & Heizung
Warum sehe ich diese Anzeige? – Du siehst diese Anzeige basierend auf Ihrer Navigation auf unserer Website und den Suchkriterien, die du verwendet hast.
Weitere Energiedaten
Haustyp
KfW 55
Details
Objektbeschreibung
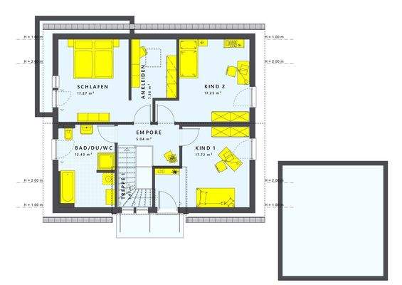
Dieses LivingHaus Einfamilienhaus mit 165 Quadratmetern Wohnfläche auf zwei Etagen verkörpert den Inbegriff individuellen Wohnens. Mit seinen vier Zimmern, darunter drei Schlafzimmer und zwei Badezimmer, bietet es ausreichend Raum für Familienleben und persönliche Rückzugsorte. Die Architektur besticht durch ein klassisches...
Ausstattung
Dein LivingHaus wird mit einer 18-monatigen Festpreisgarantie ausgestattet, die dir Sicherheit vor unerwarteten Preiserhöhungen bietet. Sollte der Baupreisindex sinken, reduziert sich auch dein Hauspreis entsprechend, sodass du von sinkenden Kosten profitierst. Zusätzlich sind wesentliche Bauversicherungen wie...
Weitere Informationen
Sonstiges
Der Grundstückspreis ist im Anzeigenpreis bereits enthalten.
Das Grundstück erwerben Sie direkt vom Eigentümer über einen Makler.
Heimkommen - ankommen - herunterkommen - wohlfühlen
Vereinbaren Sie gleich Ihren persönlichen Beratungstermin und sichern Sie sich Ihrer Familie ein geniales Bauland...
Anbieter der Immobilie
Utsch GmbH - Freie Handelsvertretung der Living Fertighaus GmbH
Amselweg 60, 53844 Troisdorf

Online-ID: 2pp8a57
Referenznummer: 30780-1625
Finde Angebote wie dieses
Hier geht es zu unserem Impressum, den Allgemeinen Geschäftsbedingungen, den Hinweisen zum Datenschutz und nutzungsbasierter Online-Werbung.