Riwog Real Estate Management GmbH

Herr Learco Andrea Tews, MSc (WU)

ERSTBEZUG mit BALKON | 4. OG | Einbauküche | Optional möbliert | Nähe Alte Donau | Fernwärme | TG-Stellplatz optional | Nachhaltiges Projekt

€ 496.100
Kaufpreis
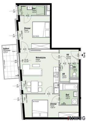
63,13 m²
Wohnfläche ca.
3
Zimmer
Finanzierung berechnen mit durchblicker

Der Anbieter dieses Objekts hat gegenüber der AVIV Germany GmbH als Betreiber dieses Online-Marktplatzes erklärt, nicht als Unternehmer im Sinne des § 1 KSchG zu handeln. Die im Verbraucherschutzrecht der Union verankerten Verbraucherrechte (insbesondere Informationspflichten und Rücktritts- bzw. Widerrufsrechte) finden auf den Vertrag zwischen dem Anbieter des Objekts und Ihnen (dem Interessenten) keine Anwendung.

Gewerblicher Anbieter

Der Anbieter dieses Objekts hat gegenüber der AVIV Germany GmbH als Betreiber dieses Online-Marktplatzes erklärt, als Unternehmer im Sinne des § 1 KSchG zu handeln.

AdresseFahrbachgasse 6
1210 Wien 
(Floridsdorf)
Auf Karte ansehen

Preise & Kosten

Kaufpreis € 496.100 Betriebskosten € 165,18

Provision für Käufer

17.859,60 € inkl. 20% USt.

Lage

Floridsdorf S+U | Alte Donau | Franz-Jonas-Platz | Floridsdorfer Wasserpark

Die Wohnung

Kategorie

Terrassenwohnung

Wohnungslage

4. Geschoss

Bezug

sofort

  • Bad mit Fenster, Wanne und Dusche
  • Balkon, Garten
  • offene Küche
  • Böden: Estrich, Fliesenboden, Parkett
  • Zustand: Erstbezug
  • Weitere Räume: Abstellraum

Wohnanlage

  • Baujahr: 2025
  • Zustand: Neubau
  • Personenaufzug

Energie & Heizung

Heizwärmebedarf (HWB)

A

22,90 kWh/(m²·a)

Gesamtenergieeffizienz (fGEE)

A

0,71

Weitere Energiedaten

Energieträger

Fernwärme

Haustyp

Niedrigenergiehaus

Heizungsart

Fußbodenheizung

Details

Objektbeschreibung

Modernes, nachhaltiges Wohnen nur einen Katzensprung von der Alten Donau entfernt: Hochwertige Eigentums- und Vorsorgewohnungen mit durchdachten Grundrissen und großzügigen Freiflächen bieten Lebensqualität auf höchstem Niveau. Natur und Stadt verbinden sich hier perfekt - die Alte Donau und das Zentrum Wiens sind in...

Mehr anzeigen

Weitere Informationen

Stichworte
Tiefgarage vorhanden, Süd-West-Balkon/Terrasse, Fahrradraum, Anzahl der Badezimmer: 2, Anzahl der separaten WCs: 1, Anzahl Balkone: 1, Balkon-Terrassen-Fläche: 6,27 m², Kellerfläche: 1,53 m², Bundesland: Wien, 7 Etagen, Wohnungsnr.: 42

Anbieter der Immobilie

Partner

Riwog Real Estate Management GmbH

im Durchschnitt  5,00  Sterne
(bei 2 Bewertungen)

Börsegasse 12, 1010 WIEN

Geschäftszeiten
user

Herr Learco Andrea Tews, MSc (WU)

Dein Ansprechpartner

Anbieter-Profil Anbieter-Impressum

Online-ID: 2pp6z57

Referenznummer: OBGC202603291112503443058a14bca

Finde Angebote wie dieses

imageimageimage

Günstige Immobilienfinanzierung einfach online berechnen

Persönliches Angebot berechnen

Hier geht es zu unserem Impressum, den Allgemeinen Geschäftsbedingungen, den Hinweisen zum Datenschutz und nutzungsbasierter Online-Werbung.