
ohne-makler.net - Immobilien selbst vermarkten
Privat von Maik Perez
Kontaktiere den Anbieter schriftlich, es ist keine Telefonnummer hinterlegt.
Preise & Kosten
nicht in Warmmiete enthalten
Kaution
2.250,00
Provision für Mieter
provisionsfrei
Warum sehe ich diese Anzeige? – Du siehst diese Anzeige basierend auf Ihrer Navigation auf unserer Website und den Suchkriterien, die du verwendet hast.
Lage
Die Immobilie befindet sich in zentraler Lage von Groß-Umstadt mit guter Infrastruktur. Einkaufsmöglichkeiten, Gastronomie sowie weitere Dienstleistungen befinden sich in unmittelbarer Umgebung.
Die Lage ist sowohl für Kunden als auch für Mitarbeiter gut erreichbar.
Infrastruktur (im Umkreis von 5 km):
Apotheke...
Büro-/Praxisfläche
Kategorie
Bürofläche
Baujahr
2002
Bezug
01.06.2026
Geschoss
2. Geschoss
Energie & Heizung
Warum sehe ich diese Anzeige? – Du siehst diese Anzeige basierend auf Ihrer Navigation auf unserer Website und den Suchkriterien, die du verwendet hast.
Wärme
Strom
Energieausweistyp
Verbrauchsausweis
Gebäudetyp
Nicht-Wohngebäude
Endenergieverbrauch (Wärme)
82,00 kWh/(m²·a)
Endenergieverbrauch (Strom)
9,00 kWh/(m²·a)
Weitere Energiedaten
Energieträger
Gas
Heizungsart
Zentralheizung
Details
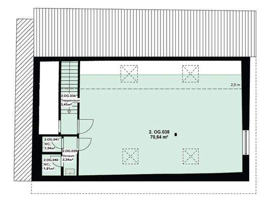
Objektbeschreibung
Zur Vermietung steht eine helle und vielseitig nutzbare Gewerbefläche im Dachgeschoss eines gepflegten Gebäudes in zentraler Lage von Groß-Umstadt.
Die Einheit bietet ca. 75 m² offene Fläche und eignet sich ideal für verschiedene gewerbliche Nutzungen wie beispielsweise Büro, Coaching- oder Beratungsräume, Praxis...
Ausstattung
Gäste-WC, Teppichboden
Preisinformation
Nettokaltmiete: 750,00 EUR
Weitere Informationen
Sonstiges
Heizungsart: Zentralheizung
Energieträger: Gas
Makleranfragen nicht erwünscht. Nach § 7 UWG sind unaufgeforderte Kontaktaufnahmen durch Makler ohne ausdrückliche Einwilligung des Empfängers verboten!
ohne-makler (OM) ist weder Anbieter noch Vermittler der Immobilie. OM betreibt eine Plattform...
Anbieter der Immobilie
ohne-makler.net - Immobilien selbst vermarkten
Humboldtstr. 25 A, 21509 Glinde
Privat von Maik Perez
Dein Ansprechpartner
Kontaktiere den Anbieter schriftlich, es ist keine Telefonnummer hinterlegt.
Online-ID: 2pp5l55
Referenznummer: 442269
Finde Angebote wie dieses
Hier geht es zu unserem Impressum, den Allgemeinen Geschäftsbedingungen, den Hinweisen zum Datenschutz und nutzungsbasierter Online-Werbung.