

SGB-Immobilien GmbH
Herr Thomas Becker
042 ···
Nr. anzeigenPreise & Kosten
Kaution
4650
Warum sehe ich diese Anzeige? – Du siehst diese Anzeige basierend auf Ihrer Navigation auf unserer Website und den Suchkriterien, die du verwendet hast.
Lage
Der Charakter des Hauses wird wesentlich bestimmt durch die Lage am See "Blanker Hans", eine Aufweitung des Huchtinger Fleets, mit Verbindung zu den Wasserwegen des "Parks links der Weser". So können Sie direkt vor der Haustür Ihr Boot (z.B. Kayak) zu Wasser lassen und erreichen über die Wasserarme des Fleets die Ochtum...
Das Haus
Kategorie
Reihenmittelhaus
Baujahr
1971
Bezug
sofort
Energie & Heizung
Warum sehe ich diese Anzeige? – Du siehst diese Anzeige basierend auf Ihrer Navigation auf unserer Website und den Suchkriterien, die du verwendet hast.
Energieausweistyp
Bedarfsausweis
Gebäudetyp
Wohngebäude
Wesentliche Energieträger
Erdgas leicht
Gültigkeit
11.11.2020 bis 11.11.2030
Effizienzklasse
D
Endenergiebedarf
129,30 kWh/(m²·a)
Weitere Energiedaten
Haustyp
Massivhaus
Energieträger
Gas
Heizungsart
Zentralheizung
Details
Objektbeschreibung
Das aufwendig sanierte Reihenhaus (Erstbezug) liegt im Stadtteil Bremen-Huchting, im Ortsteil Mittelshuchting, am Ende einer ruhigen Seitenstraße, ganz ohne Verkehrslärm.
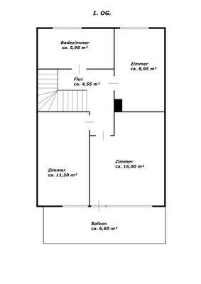
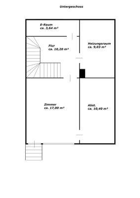
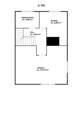
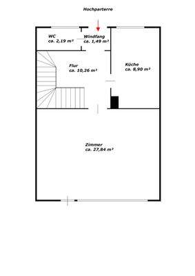
Das Haus bietet insgesamt ca. 149 m² Wohnfläche und weitere ca. 35 m² Nutzfläche, verteilt auf 6 Zimmer.
Im Hochparterre befindet sich...
Ausstattung
- vollständige Sanierung im Herbst 2020
- hochwertige Einbauküche
- neuer hochwertiger Designboden in allen Zimmern und Fluren
- neue Fenster und Außentüren mit hohem Sicherheits- und Energieeffizienzstandard
- teilweise neue Heizkörper
- neue moderne Elektroinstallation mit Datenzugang für Internet...
Preisinformation
1 Garagenstellplatz, Miete: 85,00 EUR
Weitere Informationen
Sonstiges
GELDWÄSCHE: Als Immobilienmaklerunternehmen die SGB-Immobilien GmbH nach § 2 Abs. 1 Nr. 14 und § 11 Abs. 1, 2 Geldwäschegesetz (GwG) dazu verpflichtet, bei der Begründung einer Geschäftsbeziehung die Identität des Vertragspartners festzustellen und zu überprüfen, bzw. sobald ein ernsthaftes Interesse an der...
Anbieter der Immobilie
SGB-Immobilien GmbH
Scharnhorststraße 44, 28211 Bremen

Online-ID: 2pp4953
Referenznummer: 93380#gtE1X
Finde Angebote wie dieses
Hier geht es zu unserem Impressum, den Allgemeinen Geschäftsbedingungen, den Hinweisen zum Datenschutz und nutzungsbasierter Online-Werbung.