
ohne-makler.net - Immobilien selbst vermarkten
Privat von Simon S
Kontaktiere den Anbieter schriftlich, es ist keine Telefonnummer hinterlegt.
Preise & Kosten
nicht in Warmmiete enthalten
Kaution
1.500,00
Warum sehe ich diese Anzeige? – Du siehst diese Anzeige basierend auf Ihrer Navigation auf unserer Website und den Suchkriterien, die du verwendet hast.
Lage
Die Wohnung befindet sich im beliebten Stadtteil Ricklingen, einer der gefragtesten Wohnlagen Hannovers. Ricklingen überzeugt durch seine zentrumsnahe Lage und die hervorragende Anbindung an den öffentlichen Nahverkehr: Die Stadtbahnlinien 3, 7 und 17 sowie mehrere Busverbindungen sind in 3 Gehminuten erreichbar, sodass Sie...
Die Wohnung
Wohnungslage
1. Geschoss
Bezug
nach Absprache
Wohnanlage
Energie & Heizung
Warum sehe ich diese Anzeige? – Du siehst diese Anzeige basierend auf Ihrer Navigation auf unserer Website und den Suchkriterien, die du verwendet hast.
Energieausweistyp
Verbrauchsausweis
Gebäudetyp
Wohngebäude
Endenergieverbrauch
132,00 kWh/(m²·a) - Warmwasser enthalten
Weitere Energiedaten
Energieträger
Gas
Heizungsart
Etagenheizung
Details
Objektbeschreibung
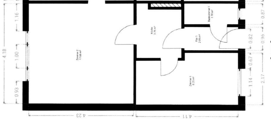
Wir freuen uns, Ihnen diese hochwertig sanierte 2-Zimmer-Eigentumswohnung in bester Lage von Hannover zur Miete anbieten zu können (Erstbezug). Die Wohnung befindet sich in einer sehr zentralen und gut angebundenen Wohngegend und besticht durch ihre ruhige und dennoch zentrale Lage. Hier haben Sie die Möglichkeit, in eine...
Ausstattung
Keller, Einbauküche, Parkett
Bemerkungen:
Die Einbauküche wird im Februar montiert.
Ebenso wird in den kommenden zwei Wochen eine neue Gasbrennwertheizung installiert, welche effizienter ist und die Heizkosten und Warmwasserkosten senkt.
Die Wohnung hat keinen Balkon.
Preisinformation
Nettokaltmiete: 580,00 EUR
Weitere Informationen
Sonstiges
Heizungsart: Etagenheizung
Energieträger: Gas
Makleranfragen nicht erwünscht. Nach § 7 UWG sind unaufgeforderte Kontaktaufnahmen durch Makler ohne ausdrückliche Einwilligung des Empfängers verboten!
ohne-makler (OM) ist weder Anbieter noch Vermittler der Immobilie. OM betreibt eine Plattform...
Anbieter der Immobilie
ohne-makler.net - Immobilien selbst vermarkten
Humboldtstr. 25 A, 21509 Glinde
Privat von Simon S
Dein Ansprechpartner
Kontaktiere den Anbieter schriftlich, es ist keine Telefonnummer hinterlegt.
Online-ID: 2pnyv56
Referenznummer: 404797
Finde Angebote wie dieses
Hier geht es zu unserem Impressum, den Allgemeinen Geschäftsbedingungen, den Hinweisen zum Datenschutz und nutzungsbasierter Online-Werbung.