
Parma Immobilien
Frau Jacqueline Henot
004 ···
Nr. anzeigenPreise & Kosten
Provision für Käufer
3,57 % inkl. 19 % MwSt.
Lage
Brandenberg ist ein kleiner Ort in der Eifelgemeinde Hürtgenwald (Kreis Düren). Der Ort zählt etwas mehr als 600 Einwohner und verzaubert mit seinem charmanten, ländlichen Charakter. Der Ort liegt in der Rureifel und im Naturpark Nordeifel. Nachbarorte sind Bergstein, Kleinhau, und Obermaubach. Von Brandenberg aus besteht ein...
Das Haus
Baujahr
1951
Bezug
nach Vereinbarung
Energie & Heizung
Warum sehe ich diese Anzeige? – Du siehst diese Anzeige basierend auf Ihrer Navigation auf unserer Website und den Suchkriterien, die du verwendet hast.
Weitere Energiedaten
Energieträger
Erdwärme
Heizungsart
Fußbodenheizung
Details
Objektbeschreibung
Diese Immobilie wurde im Jahre 1951 in massiver Bauweise errichtet, 2013/2014 um einen An- und Ausbau zu einem Mehrparteienhaus erweitert und teilsaniert.
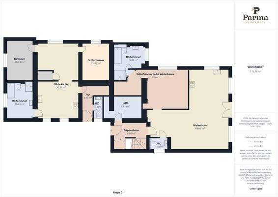
Das Erdgeschoss im Vorderhaus bildet mit rd. 70,49 m² Wohnfläche die erste Wohneinheit und verfügt über einen Flur, ein Gäste-WC, eine Wohnküche, ein Tageslichtbad...
Ausstattung
* begonnene Sanierung mit An- und Ausbau, mit Teilinnenausbau 2013/2014
* Erneuerung Ab- und Zuwasserleitungen
* Elektrik mit FI-Schalter
* 2-fach verglaste Kunststofffenster mit Rollläden
* Bodenbeläge: Fliesen, Laminat
* Dacheindeckung mit Dämmung
* Wärmepumpe inkl. Warmwasserspeicher Bj. 2013
*...
Weitere Informationen
Sonstiges
Bei Fragen stehen wir Ihnen gerne zur Verfügung.
Bitte nehmen Sie Kontakt über das Kontaktformular auf.
Jacqueline Henot
Immobilienmaklerin
Parma Immobilien
Monschauer Straße 64
52355 Düren
Kontakt
Telefon: 01573 - 1935118
E-Mail...
Anbieter der Immobilie
Online-ID: 2pnqm52
Referenznummer: JH1077
Finde Angebote wie dieses
Hier geht es zu unserem Impressum, den Allgemeinen Geschäftsbedingungen, den Hinweisen zum Datenschutz und nutzungsbasierter Online-Werbung.