

HBI - Bergmann Immobilien
Frau Heike Bergmann
033 ···
Nr. anzeigenPreise & Kosten
Provision für Käufer
3,57% inkl. MwSt.
Käufer und Verkäufer zahlen jeweils eine Maklerprovision in Höhe von 3,57% inkl. der gesetzlichen Mehrwertsteuer an die Firma Bergmann Immobilien. Die Provision errechnet sich aus dem Exposépreis und ist fällig am Tag der Beurkundung
Lage
Oranienburg ist eine Stadt mit rund 50.000 Einwohnern im Norden Brandenburgs. Sie liegt im Berliner Ballungsraum, ist Kreisstadt des Landkreises Oberhavel und große kreisangehörige Stadt, hat den Status eines Mittelzentrums und ist nach ihrer Einwohnerzahl die fünftgrößte Stadt Brandenburgs.
In Oranienburg steht das...
Das Haus
Kategorie
Einfamilienhaus
Baujahr
1940
Bezug
sofort verfügbar
Energie & Heizung
Warum sehe ich diese Anzeige? – Du siehst diese Anzeige basierend auf Ihrer Navigation auf unserer Website und den Suchkriterien, die du verwendet hast.
Energieausweistyp
Verbrauchsausweis
Gebäudetyp
Wohngebäude
Gültigkeit
bis 26.08.2035
Effizienzklasse
G
Endenergieverbrauch
245,49 kWh/(m²·a) - Warmwasser enthalten
Details
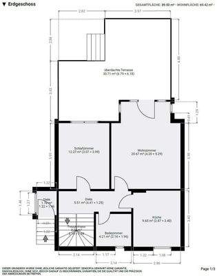
Objektbeschreibung
Dieses Einfamilienhaus im beliebten Oranienburger Ortsteil Eden bietet Ihnen die Chance, Wohnen im Grünen mit guter Anbindung zu verbinden. Auf rund 104 m² Wohnfläche verteilen sich vier Zimmer, die Ihnen viel Gestaltungsspielraum für individuelles Wohnen eröffnen. Das Haus ist voll unterkellert und verfügt über einen...
Ausstattung
Einfamilienhaus inkl. Vollkeller auf Erbbaupachtland
. Baujahr ca. 1940
. Massivbauweise
. Putzaußenfassade mit Riemchen
. Dacheindeckung
Material: Dachziegeleindeckung
. Kunststofffenster inkl. Rollläden
. Holztreppe ins OG und KG
. Bad Erdgeschoss: ausgestattet mit Badewanne und WC
. WC im...
Weitere Informationen
Erschließung
Öffentliches Wasser, öffentliches Abwasser, Strom und Gas sind angeschlossen und bezahlt laut Aussage des Eigentümers. DSL ist verfügbar laut Aussage des Internetproviders.
Bebaubarkeit
Brunnen für Gartenbewässerung
Garagen
Carport
Kamin
Sonstiges
.....
Anbieter der Immobilie
HBI - Bergmann Immobilien
Chausseestr. 7, 16515 Oranienburg

Online-ID: 2pnmj56
Referenznummer: 1001-2025
Finde Angebote wie dieses
Hier geht es zu unserem Impressum, den Allgemeinen Geschäftsbedingungen, den Hinweisen zum Datenschutz und nutzungsbasierter Online-Werbung.