

Living Fertighaus GmbH
Herr Guido Mikolajczyk
017 ···
Nr. anzeigenPreise & Kosten
Provision für Käufer
provisionsfrei
Lage
Dieses schöne Grundstück finden Sie in Leisenau, einem Stadtteil von Colditz - Bad Lausick. Das Grundstück ist in einem Neubaugebiet. Zum Verkauf steht hier ein ca. 800 qm großes Baugrundstück mit einem abrissreifen Bungalow. Das Grundstück befindet sich unverbaubarer Feldrandlage. Das Grundstück ist ortsüblich erschlossen...
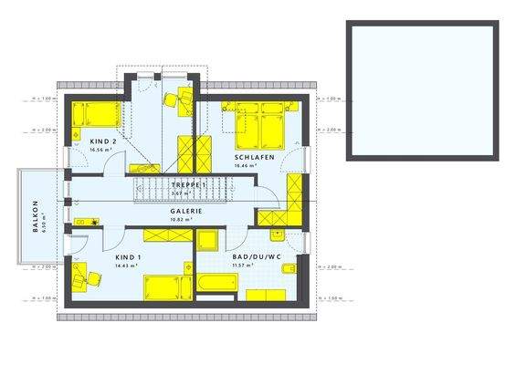
Das Haus
Kategorie
Einfamilienhaus
Energie & Heizung
Warum sehe ich diese Anzeige? – Du siehst diese Anzeige basierend auf Ihrer Navigation auf unserer Website und den Suchkriterien, die du verwendet hast.
Weitere Energiedaten
Haustyp
KfW 55
Details
Objektbeschreibung
Raus aus der Miete. Rein ins eigene Heim. Warum solltest du deinem Vermieter seine Immobilien-Wertanlage abbezahlen? Sieh dir das SUNSHINE 144 an. Es ist wie gemacht für euch: Hier könnt ihr gemeinsam kochen, essen und abends einen Film streamen. Die Alternative: Rückzug! Ins separate Zimmer, ran an die Konsole und ungestört...
Ausstattung
Living Haus, da ist alles mit drin.
Grundstücks-Service
Finanzierungs-Service
Hausbau-Förderung
alle notwendigen Bauherren-Versicherungen
DGNB-Zertifizierung in Gold
der Architekt für die Baugenehmigungsplanung
Das alles brauchst du sowieso - deshalb bekommst du das bei Living Haus...
Weitere Informationen
Sonstiges
Das hier angebotene Grundstück ist im obigen Preis eingerechnet, es wird ohne zusätzliche Provision an einen Living Haus-Bauherren bereitgestellt.
Zusätzliche Baunebenkosten müssen noch hinzugerechnet werden, hierüber beraten wir gern.
Wir bieten auch interessante Finanzierungsmöglichkeiten inklusive...
Anbieter der Immobilie
Living Fertighaus GmbH
Donauwörther Str. 5, 09114 Chemnitz

Online-ID: 2pnlk57
Referenznummer: 30353-26784
Finde Angebote wie dieses
Hier geht es zu unserem Impressum, den Allgemeinen Geschäftsbedingungen, den Hinweisen zum Datenschutz und nutzungsbasierter Online-Werbung.