
STRUKTUR BAU
Herr Gunnar Struckmeyer
017 ···
Nr. anzeigenPreise & Kosten
Provision für Käufer
provisionsfrei
Lage
Das Grundstück liegt in einer Wohngegend im südlichen Teil von Norderstedt. Mehr als die Hälfte der Stadtfläche unterteilen sich in Wald- und Grünflächen, wodurch zahlreiche Spazier- und Reitmöglichkeiten gegeben sind. Sämtliche Einrichtungen des täglichen Lebensbedarfs sind stets in unmittelbarer Nähe vorhanden. Neben dem...
Das Haus
Kategorie
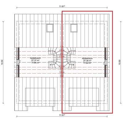
Doppelhaushälfte
Energie & Heizung
Warum sehe ich diese Anzeige? – Du siehst diese Anzeige basierend auf Ihrer Navigation auf unserer Website und den Suchkriterien, die du verwendet hast.
Energieausweis: für diesen Gebäudetyp nicht notwendig
Weitere Energiedaten
Haustyp
KfW 55
Heizungsart
Fußbodenheizung, Luft-/Wasser-Wärmepumpe
Details
Objektbeschreibung
Zwei Einheiten - ein Wohntraum: Doppelhaushälfte mit Baugenehmigung
Bei diesem Angebot handelt es sich um eine Neubau Doppelhaushälfte, auf einem ca. 315 m² großen Grundstück errichtet wird. Diese Doppelhaushälfte ist förderfähig mit KfW 55 und bietet auf eher kleinem Raum große Gestaltungsmöglichkeiten. Von der...
Ausstattung
- Wärmegedämmte Sohlenplatte aus Beton mit 80 mm Untersohlendämmung
- Fußbodenheizung im Erd- und Dachgeschoss
- Mauerwerk im Erd-, Dach-/Obergeschoss in Massivbauweise
- 2,775 m Standard-Rohbau-Geschosshöhe im Erd- und Dachgeschoss
- Dachstuhl aus Konstruktionsvollholz
- Haus und Nebeneingangstür mit...
Weitere Informationen
In dem genannten Preis ist die geplante Doppelhaushälfte mit allen vorstehend aufgeführten Extras sowie der Grundstücksanteil von ca. 315 m² enthalten. Nicht enthalten sind: Die Ankaufkosten wie Grunderwerbsteuer (6,5 %) und die Notar - und Gerichtskosten (ca. 2-3 %) sowie die Baunebenkosten. Weiterhin sind nicht enthalten...
Anbieter der Immobilie
STRUKTUR BAU
Im Wiesengrund 16, 24643 Struvenhütten
Online-ID: 2pnf354
Referenznummer: GS0004
Finde Angebote wie dieses
Hier geht es zu unserem Impressum, den Allgemeinen Geschäftsbedingungen, den Hinweisen zum Datenschutz und nutzungsbasierter Online-Werbung.