Castellanum

Firma Castellanum Toblach - Dobbiaco

Saniertes Garni mit Blick auf die Pragser Dolomiten

auf Anfrage
Kaufpreis
k.A.
Gastrofläche
13
Zimmer
k.A.
Grundstücksfl.

Der Anbieter dieses Objekts hat gegenüber der AVIV Germany GmbH als Betreiber dieses Online-Marktplatzes erklärt, nicht als Unternehmer im Sinne des § 1 KSchG zu handeln. Die im Verbraucherschutzrecht der Union verankerten Verbraucherrechte (insbesondere Informationspflichten und Rücktritts- bzw. Widerrufsrechte) finden auf den Vertrag zwischen dem Anbieter des Objekts und Ihnen (dem Interessenten) keine Anwendung.

Gewerblicher Anbieter

Der Anbieter dieses Objekts hat gegenüber der AVIV Germany GmbH als Betreiber dieses Online-Marktplatzes erklärt, als Unternehmer im Sinne des § 1 KSchG zu handeln.

AdresseInnerprags 2
39030 Prags 
Auf Karte ansehen

Preise & Kosten

Kaufpreis auf Anfrage

Provision für Käufer

3% zzgl. MwSt.

Lage

Gastronomie/Hotel

Kategorie

Hotel

Baujahr

1962

Bezug

sofort

  • Balkon, Garten, Terrasse
  • voll unterkellert
  • voll möbliert
  • 1 Stellplatz: Garage

Energie & Heizung

Energieausweistyp

Verbrauchsausweis

Gebäudetyp

Nicht-Wohngebäude

Weitere Energiedaten

Energieträger

Pellets

Heizungsart

Fußbodenheizung

Details

Objektbeschreibung

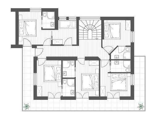
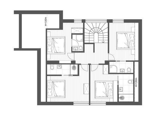
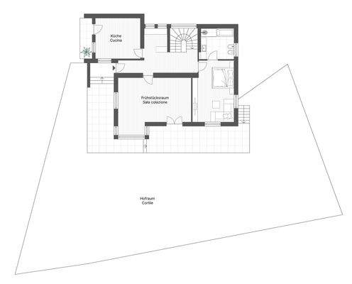
Zum Verkauf steht ein freistehendes Garni im schönen Pragsertal. Das Haus wurde intern 2020 komplett grundlegend saniert und neu strukturiert; dabei entstand eine klare Raumaufteilung mit hohem Wohnkomfort. Zurzeit stehen neun individuell gestaltete Zimmer zur Verfügung, jedes mit eigenem Badezimmer. Mit einer Nettowohnfläche...

Mehr anzeigen

Preisinformation

1 Garagenstellplatz

Weitere Informationen

Stichworte
Garage vorhanden, Stellplatz vorhanden, Wohnfläche: 276,03 m², Verkaufsfläche: 471,94 m², Anzahl der Schlafzimmer: 11, Anzahl der Badezimmer: 9, Anzahl Balkone: 2, Anzahl Terrassen: 1, Balkon-Terrassen-Fläche: 65,84 m², Gartenfläche: 557,31 m², Kellerfläche: 63,17 m², 4 Etagen

Sonstiges/Wohnen: Dachboden

Anbieter der Immobilie

Partner

Castellanum

Trattengasse 7, 37042 Brixen (BZ)

Geschäftszeiten
user

Firma Castellanum Toblach - Dobbiaco

Dein Ansprechpartner

Anbieter-Website Anbieter-Profil Anbieter-Impressum

Online-ID: 2pndf57

Referenznummer: TO13455

Finde Angebote wie dieses

imageimageimage

Hier geht es zu unserem Impressum, den Allgemeinen Geschäftsbedingungen, den Hinweisen zum Datenschutz und nutzungsbasierter Online-Werbung.