
Wohnkraft Immobilien
Herr Danil Gerlach
+49 ···
Nr. anzeigenPreise & Kosten
Provision für Käufer
provisionsfrei
Lage
Marbach am Neckar, mit der Postleitzahl 71672, ist eine historische Stadt im Landkreis Ludwigsburg in Baden-Württemberg. Bekannt als Geburtsort des berühmten Dichters Friedrich Schiller, vereint Marbach am Neckar eine lange kulturelle Tradition, naturnahe Umgebung und moderne Infrastruktur, was sie zu einem attraktiven...
Die Wohnung
Wohnungslage
Erdgeschoss
Bezug
Sofort
Wohnanlage
Energie & Heizung
Warum sehe ich diese Anzeige? – Du siehst diese Anzeige basierend auf Ihrer Navigation auf unserer Website und den Suchkriterien, die du verwendet hast.
Energieausweis: für diesen Gebäudetyp nicht notwendig
Weitere Energiedaten
Energieträger
Elektro
Details
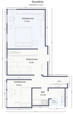
Objektbeschreibung
Herzlich willkommen zu dieser charmanten 3-Zimmer-Wohnung. Diese angebotene Immobilie liegt im EG und besticht durch ihren besonderen Charme.
Es handelt sich hier um eine renovierte Wohnung. Zu dem Apartment zählen drei hübsche Zimmer.
Beim Haus handelt es sich um ein denkmalgeschütztes Haus.
Ausstattung
Zwei Kellerräume bieten ausreichend Stauraum, um Ihre persönlichen Gegenstände ordentlich zu verstauen.
Genießen Sie zudem die Vorzüge eines eigenen Stellplatzes, wo durch man Zeit spart nach einen Parkplatz zu suchen.
Die passende Ausrichtung der Wohnung durchfluten die Räumlichkeiten mit natürlichem Licht und...
Preisinformation
1 Stellplatz
Weitere Informationen
Sonstiges
Folgende Dinge wurden erneuert oder verbessert.
Wände mit hochwertigen Glattputz: 2018
2-fach-verglaste Fenster
- Neuer Boden in Wohnzimmer, Schlafzimmer & Kinderzimmer: 2018
- neue Türen und Türzargen: 2018
- neue Sanitäranlagen im Bad wie WC und...
Dokumente
Anbieter der Immobilie
Wohnkraft Immobilien
Brunnenstr. 14, 72202 Nagold
Online-ID: 2pndd53
Referenznummer: 5170175
Finde Angebote wie dieses
Hier geht es zu unserem Impressum, den Allgemeinen Geschäftsbedingungen, den Hinweisen zum Datenschutz und nutzungsbasierter Online-Werbung.