

SCHLOSSBERGER-IMMOBILIEN
Frau Hilke Schlossberger
081 ···
Nr. anzeigenPreise & Kosten
Provision für Käufer
2,26% (inkl. MWSt.) des verbrieften Kaufpreises
Lage
NATURNÄHE & LEBENSQUALITÄT I EXZELLENTE ANBINDUNG I FAMILIENFREUNDLICHE INFRASTRUKTUR
ARCHITEKTONISCHE QUALITÄT & GEWACHSENES ORTSBILD
Diese repräsentative Villenhälfte ist so großzügig gestaltet, dass der Eindruck eines Einfamilienhauses erlebt wird. Der Architekt hat bewusst auf die Privatsphäre...
Das Haus
Baujahr
2013
Energie & Heizung
Warum sehe ich diese Anzeige? – Du siehst diese Anzeige basierend auf Ihrer Navigation auf unserer Website und den Suchkriterien, die du verwendet hast.
Energieausweistyp
Verbrauchsausweis
Gebäudetyp
Wohngebäude
Wesentliche Energieträger
Gas
Gültigkeit
09.12.2025 bis 08.12.2035
Effizienzklasse
A
Endenergieverbrauch
36,00 kWh/(m²·a) - Warmwasser enthalten
Weitere Energiedaten
Energieträger
Gas
Heizungsart
offener Kamin
Details
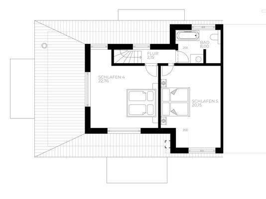
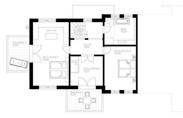
Objektbeschreibung
EIN STATEMENT VON STIL UND GRÖSSE: EINE BESONDERE IMMOBILIE FÜR BESONDERE MENSCHEN
ANKOMMEN, EINZIEHEN & WOHLFÜHLEN - BERG- & SEEBLICK GENIESSEN!
MODERNE TECHNIK UND EXZELLENTE, NEUWERTIGE BAUAUSFÜHRUNG BEGEISTERN!
Diese außergewöhnliche und sehr repräsentative Architekten-Villa bietet eine seltene...
Ausstattung
DIESES WOHNHAUS WURDE ÄUSSERST SORGFÄLTIG VON EINEM ARCHITEKTEN GEPLANT UND DURCHDACHT
SOWOHL ENERGETISCH, BAUKONSTRUKTIV, PLANERISCH UND VOM GESTALTUNGSANSPRUCH HER WURDE HIER AUF HÖCHSTEM NIVEAU GEARBEITET UND GEWÄHRLEISTET SOMIT EINE WERTHALTIGE UND ÄUSSERST SOLIDE INVESTITION
BAUKONSTRUKTION &...
Preisinformation
3 Carportplätze
Weitere Informationen
Sonstiges
Trotz sorgfältiger Prüfung können wir keine Haftung für die Richtigkeit, die Vollständigkeit und die Aktualität der Objektdaten übernehmen. Diese basieren auf uns erteilten Angaben. Ursprüngliche Planungsunterlagen und ursprüngliche Wohnflächenberechnungen können von der Realität und der tatsächlichen Ausführung...
Anbieter der Immobilie

Online-ID: 2pncx57
Referenznummer: SI-2631
Finde Angebote wie dieses
Hier geht es zu unserem Impressum, den Allgemeinen Geschäftsbedingungen, den Hinweisen zum Datenschutz und nutzungsbasierter Online-Werbung.