
allkauf haus GmbH
Herr Vitali Stettinger
+49 ···
Nr. anzeigenPreise & Kosten
Provision für Käufer
provisionsfrei
Lage
Das Haus befindet sich in einem attraktiven Wohngebiet in Mühlheim am Main. In der unmittelbaren Umgebung finden Sie eine gute Infrastruktur mit Bahnhof, Grundschule und Kindergarten. Diese Lage verbindet ruhiges Wohnen mit praktischer Nähe zu wichtigen Einrichtungen und vielfältigen Freizeitmöglichkeiten in der Umgebung.
Das Haus
Kategorie
Einfamilienhaus
Baujahr
2027
Energie & Heizung
Warum sehe ich diese Anzeige? – Du siehst diese Anzeige basierend auf Ihrer Navigation auf unserer Website und den Suchkriterien, die du verwendet hast.
Weitere Energiedaten
Haustyp
KfW 40
Heizungsart
Fußbodenheizung, Luft-/Wasser-Wärmepumpe
Details
Objektbeschreibung
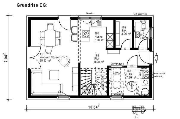
Dieses projektiertes Einfamilienhaus in Mühlheim am Main bietet Ihnen die Möglichkeit, Ihre ganz persönlichen Wohnträume zu verwirklichen. Mit 6 Zimmern auf einer großzügigen Wohnfläche von 178 m² und einem 645 m² großen Grundstück ist Raum für die ganze Familie vorhanden. Das Haus erstreckt sich über drei Etagen und umfasst...
Ausstattung
Das Haus verfügt über hochwertige Bodenbeläge aus Fliesen und Laminat. Fliesen sind besonders pflegeleicht und langlebig, ideal für stark frequentierte Bereiche und für Allergiker geeignet. Laminat hingegen bietet eine warme und gemütliche Optik und ist zudem robust und einfach zu reinigen. Beheizt wird das Haus mit einer...
Weitere Informationen
Sonstiges
allkauf steht für maximale Sicherheit, kurze Lieferzeiten und garantierte Fertigstellung. Wir wissen, wie viele Unsicherheiten beim Hausbau auftreten können - nicht so mit allkauf! Sie profitieren von kurzen Lieferzeiten, einer Liefergarantie, Festpreis- und Fertigstellungsgarantie. Unsere modernen Fertighäuser...
Anbieter der Immobilie
allkauf haus GmbH
Ludwig Erhard Str. 2, 68162 Bad Vilbel
Online-ID: 2pn9g54
Referenznummer: 3019-13-kw11-77705 OFF FT
Finde Angebote wie dieses
Hier geht es zu unserem Impressum, den Allgemeinen Geschäftsbedingungen, den Hinweisen zum Datenschutz und nutzungsbasierter Online-Werbung.