
ohne-makler.net - Immobilien selbst vermarkten
Privat vom Eigentümer
Kontaktiere den Anbieter schriftlich, es ist keine Telefonnummer hinterlegt.
Preise & Kosten
Provision für Käufer
provisionsfrei
Lage
Das Haus liegt in Lünen-Wethmar, einer der beliebtesten Wohnlagen der Stadt.
Hier wohnen Familien ruhig und gleichzeitig gut angebunden:
gewachsene, familienfreundliche Nachbarschaft
kurze Wege zu Schulen, Kindergärten und Spielplätzen
Einkaufsmöglichkeiten und Ärzte in der Nähe
gute Anbindung Richtung...
Das Haus
Kategorie
Einfamilienhaus
Baujahr
1955
Bezug
nach Absprache
Energie & Heizung
Warum sehe ich diese Anzeige? – Du siehst diese Anzeige basierend auf Ihrer Navigation auf unserer Website und den Suchkriterien, die du verwendet hast.
Energieausweistyp
Bedarfsausweis
Gebäudetyp
Wohngebäude
Effizienzklasse
D
Endenergiebedarf
129,00 kWh/(m²·a)
Weitere Energiedaten
Energieträger
Öl
Heizungsart
Zentralheizung
Details
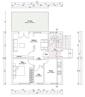
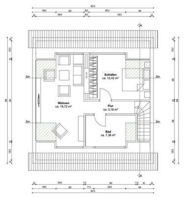
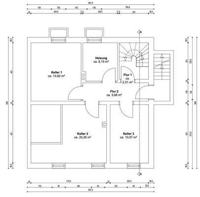
Objektbeschreibung
Dieses vollständig renovierte Haus in ruhiger Lage von Lünen-Wethmar bietet eine seltene Möglichkeit: Wohnen für mehrere Generationen unter einem Dach - mit klar getrennten Bereichen und gleichzeitigem Zusammenleben.
Das Haus verfügt über ca. 165 m² Wohnfläche auf einem 488 m² großen Grundstück und ist in drei...
Ausstattung
Terrasse, Garten, Keller, Laminat, Fliesen
Bemerkungen:
Ausstattung
Das Haus wurde umfassend modernisiert und bietet eine hochwertige Ausstattung, die den Alltag komfortabel und unkompliziert macht.
Außen & Grundstück:
488 m² Grundstück
Gartenanteile für jede Wohneinheit
große Terrasse...
Preisinformation
4 Stellplätze
2 Garagenstellplätze
Weitere Informationen
Sonstiges
Heizungsart: Zentralheizung
Energieträger: Öl
Das Haus liegt in Lünen-Wethmar, einer der beliebtesten Wohnlagen der Stadt.
Hier wohnen Familien ruhig und gleichzeitig gut angebunden:
gewachsene, familienfreundliche Nachbarschaft
kurze Wege zu Schulen, Kindergärten und...
Anbieter der Immobilie
ohne-makler.net - Immobilien selbst vermarkten
Humboldtstr. 25 A, 21509 Glinde
Privat vom Eigentümer
Dein Ansprechpartner
Kontaktiere den Anbieter schriftlich, es ist keine Telefonnummer hinterlegt.
Online-ID: 2pn5w57
Referenznummer: 443359
Finde Angebote wie dieses
Hier geht es zu unserem Impressum, den Allgemeinen Geschäftsbedingungen, den Hinweisen zum Datenschutz und nutzungsbasierter Online-Werbung.