

Tauschwohnung GmbH
Herr John Weinert
+49 ···
Nr. anzeigenPreise & Kosten
Warum sehe ich diese Anzeige? – Du siehst diese Anzeige basierend auf Ihrer Navigation auf unserer Website und den Suchkriterien, die du verwendet hast.
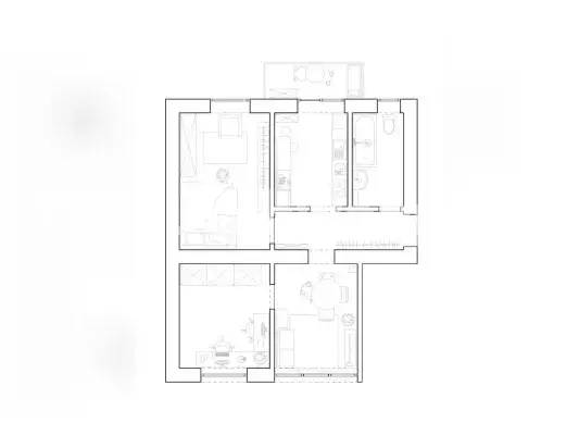
Die Wohnung
Wohnungslage
1. Geschoss
Details
Objektbeschreibung
Es handelt es sich hierbei um ein Tauschangebot. (Anbieter-ID: 323186)
Charmante 3-Zimmer-Wohnung mit Altbauflair im Herzen von Nippes
Die Wohnung liegt im ersten Stock. Die hohen Decken verleihen der Wohnung einen gewissen Altbauflair und lassen die Wohnung größer wirken.
Die 3 Zimmer sind sehr...
Weitere Informationen
Stichworte
Anzahl Balkone: 1, Anzahl Terrassen: 1
Anbieter der Immobilie

Online-ID: 2pn4x55
Referenznummer: 323186
Finde Angebote wie dieses
Hier geht es zu unserem Impressum, den Allgemeinen Geschäftsbedingungen, den Hinweisen zum Datenschutz und nutzungsbasierter Online-Werbung.