
DEN Investments GmbH
Herr Deniz Alexander Enüstün
+49 ···
Nr. anzeigenPreise & Kosten
Provision für Käufer
4,76%
Die Maklercourtage beträgt 4,76% vom Kaufpreis inkl. gesetzlicher MwSt.
Lage
1A-Lage
Die Immobilie befindet sich in verkehrsgünstiger Lage im Gewerbegebiet von Waghäusel-Wiesental.
Der Standort zeichnet sich durch seine unmittelbare Nähe zu etablierten Gewerbeansiedlungen sowie durch eine sehr gute infrastrukturelle Anbindung aus.
Besonders hervorzuheben ist die direkte Nachbarschaft...
Das Renditeobjekt
Kategorie
Wohn- und Geschäftshaus
Baujahr
2015
Energie & Heizung
Warum sehe ich diese Anzeige? – Du siehst diese Anzeige basierend auf Ihrer Navigation auf unserer Website und den Suchkriterien, die du verwendet hast.
Weitere Energiedaten
Heizungsart
Fußbodenheizung, Luft-/Wasser-Wärmepumpe
Details
Objektbeschreibung
Secret Sale - diskrete Vermarktung
Diese Immobilie wird bewusst ohne öffentliche Bilddarstellung angeboten. Detaillierte Objektunterlagen, Bilder, eine Drohnenaufnahme sowie eine 360°-Tour erhalten Sie exklusiv nach Ihrer Anfrage.
Bei der angebotenen Liegenschaft handelt es sich um eine hochwertige, im Jahr...
Ausstattung
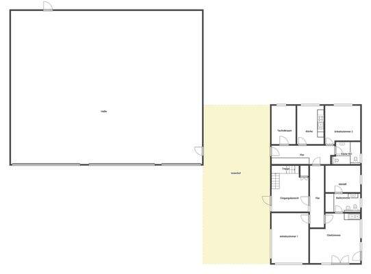
? Mischimmobilie: Gewerbehalle + Büro + Betriebsleiterwohnung
? Grundstück ca. 2.024 m² - ideal für Fuhrpark & gewerbliche Nutzung
? Freistehende Halle ca. 302 m² mit Fußbodenheizung
? Photovoltaikanlage auf der Halle (ca. 35 kWp)
? Büroeinheit im EG ca. 130 m² mit 2 Arbeitszimmern
? Separates Chefzimmer...
Preisinformation
15 Stellplätze
Nettorendite Soll in %: 5,03
Soll-Mieteinnahmen pro Jahr: 88.000,00 EUR
Weitere Informationen
Sonstiges
Hinweis zur Wasserversorgung:
Die Wasserversorgung der Immobilie erfolgt derzeit über das Leitungsnetz des benachbarten Globus-Marktes. Die anfallenden Wasserkosten werden entsprechend weiterbelastet.
Der Eingangsbereich des Gebäudes wurde so konzipiert, dass eine Nachrüstung eines innenliegenden...
Anbieter der Immobilie
DEN Investments GmbH
Leipziger Str. 6, 76297 Stutensee
Online-ID: 2pn4j57
Referenznummer: ID-2038
Finde Angebote wie dieses
Hier geht es zu unserem Impressum, den Allgemeinen Geschäftsbedingungen, den Hinweisen zum Datenschutz und nutzungsbasierter Online-Werbung.