
AssetGate GmbH
Frau Katy Sonnenberg
004 ···
Nr. anzeigenPreise & Kosten
Provision für Käufer
provisionsfrei
Lage
Steinbach ist ein malerischer Ortsteil der Stadt Bad Liebenstein im Wartburgkreis in Thüringen. Eingebettet in die sanften Höhenzüge des Thüringer Waldes liegt Steinbach in unmittelbarer Nähe zur bekannten Kurstadt Bad Liebenstein und nur wenige Kilometer von der Wartburgstadt Eisenach entfernt.
Die idyllische Lage am...
Das Haus
Kategorie
Mehrfamilienhaus
Baujahr
1930
Derzeitige Nutzung
vermietet
Energie & Heizung
Warum sehe ich diese Anzeige? – Du siehst diese Anzeige basierend auf Ihrer Navigation auf unserer Website und den Suchkriterien, die du verwendet hast.
Energieausweistyp
Verbrauchsausweis
Gebäudetyp
Wohngebäude
Baujahr laut Energieausweis
1930
Wesentliche Energieträger
GAS
Gültigkeit
bis 23.10.2025
Effizienzklasse
C
Endenergieverbrauch
84,00 kWh/(m²·a)
Weitere Energiedaten
Energieträger
Gas
Heizungsart
Zentralheizung
Details
Objektbeschreibung
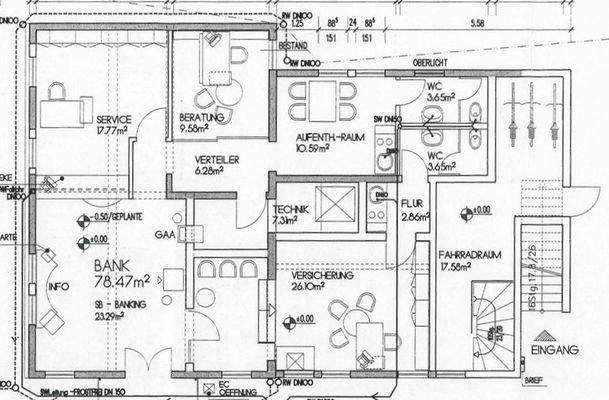
Dieses vielseitige Wohn- und Geschäftshaus bietet ein attraktives Ausbaupotenzial.
Das 1930 erbaute und 1999 sanierte Wohn- und Geschäftshaus zeichnet sich durch eine durchdachte Aufteilung und flexible Nutzungsmöglichkeiten aus.
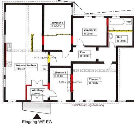
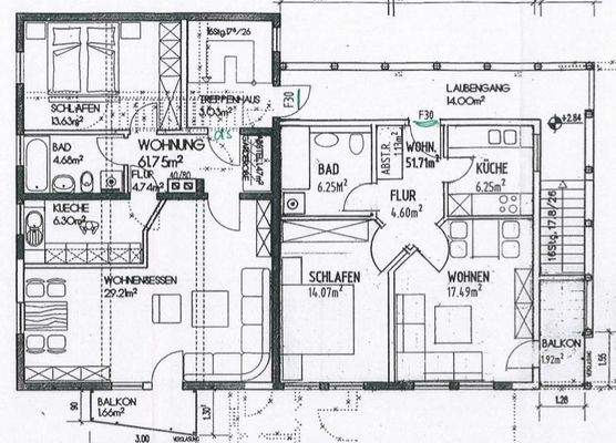
Die Immobilie umfasst drei Wohneinheiten mit einer Gesamtwohnfläche von ca. 164 m²...
Ausstattung
Möchten Sie weitere Informationen und Unterlagen zum Objekt? Wünschen Sie einen Besichtigungstermin?
Bitte nutzen Sie das Kontaktformular auf dieser Seite! Sofern Sie uns Ihre Kontaktdaten und eine E-Mail-Adresse übermitteln - senden wir Ihnen sofort alle Informationen und Unterlagen an die angegebene E-Mail-Adresse -...
Preisinformation
5 Stellplätze
Weitere Informationen
Stichworte
Nutzfläche: 110,00 m², Gesamtfläche: 274,00 m², Anzahl Balkone: 2, Anzahl der Wohneinheiten: 4, 3 Etagen, Distanz zum Kindergarten: 2.54, Distanz zur Grundschule: 2.24, Distanz zur nächsten Einkaufsmöglichkeit: 2.33, Distanz zum Gymnasium: 6.37, Distanz zum Hauptbahnhof: 12.61, Distanz zur Autobahn: 15.12...
Anbieter der Immobilie
AssetGate GmbH
Bismarckplatz 1, 45128 Essen
Online-ID: 2pn3w55
Referenznummer: 50279
Finde Angebote wie dieses
Hier geht es zu unserem Impressum, den Allgemeinen Geschäftsbedingungen, den Hinweisen zum Datenschutz und nutzungsbasierter Online-Werbung.