

Jonny Wiekhorst Immobilien GmbH und Co KG
Frau Laura Wiekhorst
048 ···
Nr. anzeigenPreise & Kosten
Provision für Käufer
2,98%
Lage
Die angebotene Immobilie befindet sich im harmonisch gelegenen Ortskern von Lohe-Rickelshof in Dithmarschen.
Lohe-Rickelshof ist eine eigenständige Gemeinde im Amt Heider Umland, kurz vor der Kreisstadt Heide gelegen. Das "Dörpshus", in der Ortsmitte gelegen, ist mit seinem gemütlichen Restaurant, Clubraum, Saal und vier...
Das Haus
Kategorie
Einfamilienhaus
Baujahr
1924
Energie & Heizung
Warum sehe ich diese Anzeige? – Du siehst diese Anzeige basierend auf Ihrer Navigation auf unserer Website und den Suchkriterien, die du verwendet hast.
Energieausweistyp
Verbrauchsausweis
Gebäudetyp
Wohngebäude
Baujahr laut Energieausweis
1924
Wesentliche Energieträger
OEL
Gültigkeit
bis 04.01.2032
Effizienzklasse
G
Endenergieverbrauch
206,30 kWh/(m²·a)
Weitere Energiedaten
Energieträger
Öl
Details
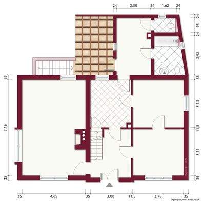
Objektbeschreibung
Sie suchen ein umfassend und fachkundig modernisiertes Wohnhaus in einem der beliebtesten Wohnorte der Westküstenregion Dithmarschens ? Dann haben wir hier die passende Immobilie für Sie !
Dieses umfassend sanierte Einfamilienhaus aus dem Ursprung ca. 1924 befindet sich auf einem gepflegten ca. 547 m² großen...
Ausstattung
- Aufwendig und hochwertig modernisiertes Wohnhaus nebst Nebengelass in 2018/2019.
- Geschossaußenwände : 2 cm Außenputz,11,5 cm Kalksandstein, 6cm Luftschicht, 17,5 cm Ytong, 1,5 cm Putz
- Streifenfundamente
- Erneuerte Haustür mit integriertem verzierten Glaseinsatz
- Neues Dach inkl. neuer Tonpfanneneindeckung...
Preisinformation
1 Carportplatz
1 Stellplatz
Weitere Informationen
Sonstiges
Hinweis : Weitere Innenbilder erhalten Sie zum Schutz der Privatsphäre der derzeitigen Mieter nach schriftlicher Anfrage.
Wir bitten Sie, nach Absprache mit den Eigentümern, das Grundstück nicht ohne Zustimmung durch unser Büro oder in unserem Beisein zu betreten.
Vielen Dank!
Ihr...
Anbieter der Immobilie
Jonny Wiekhorst Immobilien GmbH und Co KG
Friedrichstr. 41, 25746 Heide

Online-ID: 2pmyt53
Referenznummer: 0750
Finde Angebote wie dieses
Hier geht es zu unserem Impressum, den Allgemeinen Geschäftsbedingungen, den Hinweisen zum Datenschutz und nutzungsbasierter Online-Werbung.