
ohne-makler.net - Immobilien selbst vermarkten
Privat von Würker GmbH
Kontaktiere den Anbieter schriftlich, es ist keine Telefonnummer hinterlegt.
Preise & Kosten
nicht in Warmmiete enthalten
Kaution
1.300,00
Warum sehe ich diese Anzeige? – Du siehst diese Anzeige basierend auf Ihrer Navigation auf unserer Website und den Suchkriterien, die du verwendet hast.
Lage
Die Wohnung befindet sich in zentraler Lage in Lichtenstein. Einkaufsmöglichkeiten, Schulen und öffentliche Verkehrsmittel sind bequem zu Fuß erreichbar. Die ruhige Umgebung kombiniert die Vorteile einer innerstädtischen Lage mit naturnaher Erholung, sodass sowohl Alltag als auch Freizeit optimal gestaltet werden...
Die Wohnung
Wohnungslage
3. Geschoss (Dachgeschoss)
Bezug
sofort
Wohnanlage
Energie & Heizung
Warum sehe ich diese Anzeige? – Du siehst diese Anzeige basierend auf Ihrer Navigation auf unserer Website und den Suchkriterien, die du verwendet hast.
Energieausweistyp
Verbrauchsausweis
Gebäudetyp
Wohngebäude
Endenergieverbrauch
90,00 kWh/(m²·a) - Warmwasser enthalten
Weitere Energiedaten
Energieträger
Gas
Heizungsart
Zentralheizung
Details
Objektbeschreibung
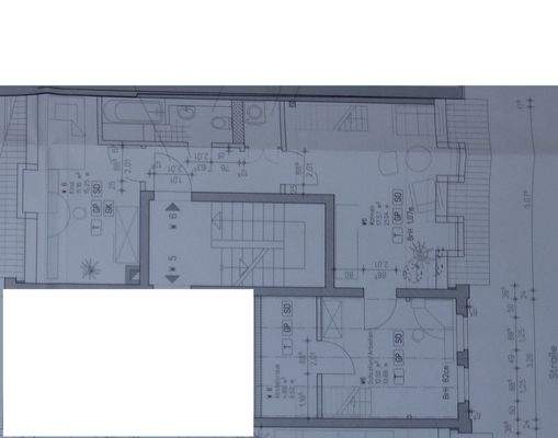
Diese attraktive Maisonette-Wohnung bietet auf 76 m² eine gelungene Raumaufteilung mit insgesamt 3,5 Zimmern.
In der Wohnung befinden sich zwei helle Schlafräume, ideal für Paare oder kleine Familien. Das großzügige Wohnzimmer lädt zum Entspannen ein, während die Küche mit integriertem Essbereich und moderner Einbauküche...
Ausstattung
Keller, Vollbad, Einbauküche, Laminat, Fliesen
Bemerkungen:
Maisonette-Wohnung, 76 m²
3,5 Zimmer (2 Schlafräume, 1 Wohnzimmer, 1 Küche mit Essbereich)
Einbauküche inklusive
Bad mit Fenster, Wanne und Dusche
Flur mit Zugang zu allen Räumen
Abstellraum im Hof
Optional: Stellplätze im Hof mietbar
Preisinformation
2 Stellplätze, Miete je: 20,00 EUR
Nettokaltmiete: 450,00 EUR
Weitere Informationen
Sonstiges
Heizungsart: Zentralheizung
Energieträger: Gas
Makleranfragen nicht erwünscht. Nach § 7 UWG sind unaufgeforderte Kontaktaufnahmen durch Makler ohne ausdrückliche Einwilligung des Empfängers verboten!
ohne-makler (OM) ist weder Anbieter noch Vermittler der Immobilie. OM betreibt eine Plattform...
Anbieter der Immobilie
ohne-makler.net - Immobilien selbst vermarkten
Humboldtstr. 25 A, 21509 Glinde
Privat von Würker GmbH
Dein Ansprechpartner
Kontaktiere den Anbieter schriftlich, es ist keine Telefonnummer hinterlegt.
Online-ID: 2pmmp53
Referenznummer: 440968
Finde Angebote wie dieses
Hier geht es zu unserem Impressum, den Allgemeinen Geschäftsbedingungen, den Hinweisen zum Datenschutz und nutzungsbasierter Online-Werbung.