
McMakler GmbH
Ihr McMakler Team
080 ···
Nr. anzeigenPreise & Kosten
Provision für Käufer
Die Provision i.H.v. 3,57 % inkl. MwSt. ist mit Kaufvertragsbeurkundung fällig, sofern der Verkaufspreis über 83.000,00 € liegt.
Liegt der Verkaufspreis dagegen bei/unter 83. Weitere Informationen siehe Provisionshinweis.
Lage
Lage: Attraktive Lage in Trier-Ruwer mit guten Bedingungen für Kapitalanleger
Bildung und Betreuung: Familienfreundliche Wohnlage mit Kindergarten und Schule in Gehnähe
Nahversorgung: Tägl. Bedarf durch Supermarkt, Apotheke, Postfiliale und Bankfiliale in max. 6 km gedeckt
Anbindung: Gut erreichbar: Bushaltestelle...
Das Renditeobjekt
Kategorie
Mehrfamilienhaus
Baujahr
1892
Bezug
ab sofort
Energie & Heizung
Warum sehe ich diese Anzeige? – Du siehst diese Anzeige basierend auf Ihrer Navigation auf unserer Website und den Suchkriterien, die du verwendet hast.
Energieausweistyp
Bedarfsausweis
Gebäudetyp
Wohngebäude
Baujahr laut Energieausweis
1892
Wesentliche Energieträger
Strom
Effizienzklasse
G
Endenergiebedarf
222,70 kWh/(m²·a)
Weitere Energiedaten
Energieträger
Elektro
Details
Objektbeschreibung
Objektnr: 1070945
Als ideales Investmentobjekt präsentiert sich dieses Mehrfamilienhaus in Trier-Ruwer, gut angebunden an das regionale Straßen- und ÖPNV-Netz. Die attraktive Lage in Ruwer bietet eine freundliche und ruhige Atmosphäre, was vor allem Familien und sozial orientierte Menschen anspricht. Anleger haben...
Ausstattung
+ Mehrfamilienhaus mit 4 Einheiten in Trier eignet sich für Investoren
+ Vermietet zu ca. 23.820 € p.a. netto-kalt
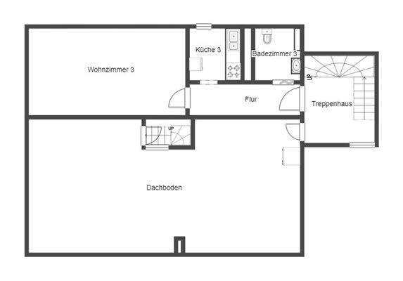
+ Das Objekt präsentiert sich in einem gepflegten Zustand - letzte Modernisierungsmaßnahmen erfolgten 1991 - Dachgeschoss ist ausbaufähig
+ Ausstattungsdetails umfassen eine Einbauküche
+ Ein Keller...
Preisinformation
Ist-Mieteinnahmen pro Jahr: 23.820,00 EUR
Weitere Informationen
Provisionshinweis
Die Provision i.H.v. 3,57 % inkl. MwSt. ist mit Kaufvertragsbeurkundung fällig, sofern der Verkaufspreis über 83.000,00 € liegt.
Liegt der Verkaufspreis dagegen bei/unter 83.000,00 €, ist die fest vereinbarte Mindestprovision i.H.v. mind. 5.950,00 € inkl. MwSt. mit Kaufvertragsbeurkundung fällig...
Anbieter der Immobilie
McMakler GmbH
Am Postbahnhof 17, 10243 Berlin
Online-ID: 2pml853
Referenznummer: ab3867aa68
Finde Angebote wie dieses
Hier geht es zu unserem Impressum, den Allgemeinen Geschäftsbedingungen, den Hinweisen zum Datenschutz und nutzungsbasierter Online-Werbung.