
Altmeyer Immobilien
Herr Alexander Altmeyer
052 ···
Nr. anzeigenPreise & Kosten
Provision für Käufer
3% zzgl. MwSt. bei Abschluss des notariellen Kaufvertrages
Lage
Die Lage zeichnet sich durch ihre zentrale und dennoch ruhige Wohngegend aus. Einkaufsmöglichkeiten, Schulen und Einrichtungen des täglichen Bedarfs sind schnell erreichbar, während die Umgebung gleichzeitig ein angenehmes und familienfreundliches Wohnumfeld bietet.
Das Haus
Kategorie
Doppelhaushälfte
Baujahr
1990
Bezug
sofort
Derzeitige Nutzung
frei
Energie & Heizung
Warum sehe ich diese Anzeige? – Du siehst diese Anzeige basierend auf Ihrer Navigation auf unserer Website und den Suchkriterien, die du verwendet hast.
Energieausweistyp
Bedarfsausweis
Gebäudetyp
Wohngebäude
Baujahr laut Energieausweis
1990
Wesentliche Energieträger
Erdgas
Gültigkeit
02.04.2026 bis 02.04.2036
Effizienzklasse
F
Endenergiebedarf
172,40 kWh/(m²·a)
Weitere Energiedaten
Energieträger
Gas
Heizungsart
Zentralheizung
Details
Objektbeschreibung
Diese gepflegte Doppelhaushälfte aus dem Jahr 1990 überzeugt durch eine durchdachte Raumaufteilung und ein angenehmes Wohnambiente – ideal für Familien.
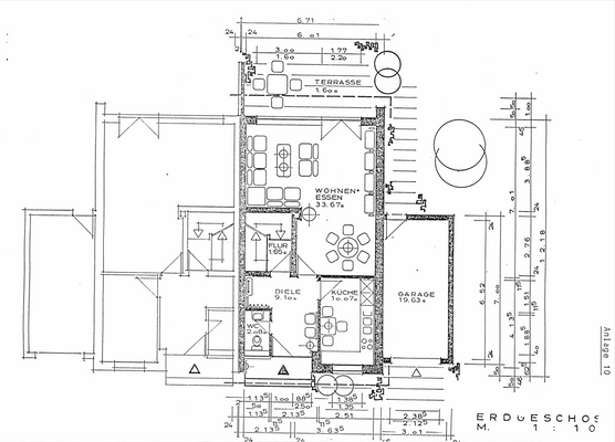
Im Erdgeschoss erwartet Sie ein großzügiges Wohn- und Esszimmer mit viel Tageslicht. Von hier aus gelangen Sie über ein großes Schiebefenster direkt in den eigenen...
Ausstattung
Baujahr: 1990
Gas-Brennwertheizung (2023)
Hochwertige Einbauküche im Kaufpreis enthalten
Großzügiges Wohn- und Esszimmer mit Zugang zum Garten
Blickgeschützter Garten mit Terrasse
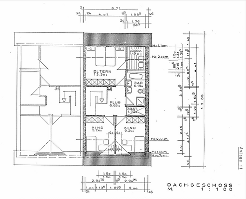
Loggia am Elternschlafzimmer
Zwei Kinderzimmer – ideal für Familien
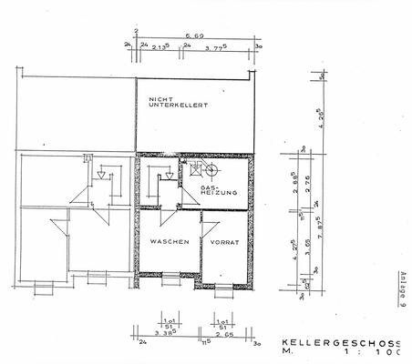
Teilunterkellert (3 Räume inkl...
Anbieter der Immobilie
Altmeyer Immobilien
August-Claas-Str. 35, 33428 Harsewinkel
Online-ID: 2pmks53
Finde Angebote wie dieses
Hier geht es zu unserem Impressum, den Allgemeinen Geschäftsbedingungen, den Hinweisen zum Datenschutz und nutzungsbasierter Online-Werbung.