
ImmoNetzwerk GmbH
Herr Frank Duffner
016 ···
Nr. anzeigenPreise & Kosten
Provision für Käufer
2.975% (inkl. MwSt.) inkl. MwSt.
Lage
Selent ist eine idyllische Gemeinde in Schleswig-Holstein, gelegen im Kreis Plön. Die Ortschaft zeichnet sich durch ihre naturnahe Lage zwischen Kiel und der Holsteinischen Schweiz aus. Besonders reizvoll ist die Nähe zum Selenter See, dem zweitgrößten See Schleswig-Holsteins, der zahlreiche Freizeitmöglichkeiten wie...
Das Haus
Kategorie
Mehrfamilienhaus
Baujahr
1972
Derzeitige Nutzung
vermietet
Energie & Heizung
Warum sehe ich diese Anzeige? – Du siehst diese Anzeige basierend auf Ihrer Navigation auf unserer Website und den Suchkriterien, die du verwendet hast.
Energieausweistyp
Bedarfsausweis
Gebäudetyp
Wohngebäude
Baujahr laut Energieausweis
1972
Wesentliche Energieträger
GAS
Gültigkeit
bis 19.03.2035
Effizienzklasse
D
Endenergiebedarf
114,08 kWh/(m²·a)
Weitere Energiedaten
Haustyp
Massivhaus
Energieträger
Gas
Heizungsart
Zentralheizung
Details
Objektbeschreibung
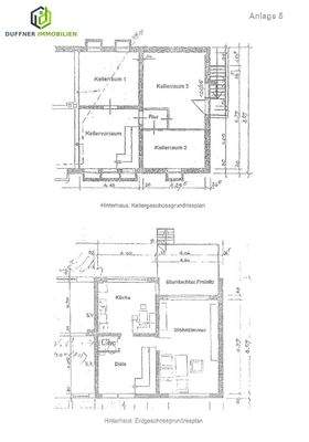
Das sehr gepflegte Mehrfamilienhaus aus dem Jahr 1972 wurde in massiver Bauweise errichtet. Das Haus wurde komplett saniert. Es handelt sich um eine solide und gut gepflegte Immobilie mit vier vermieteten Wohneinheiten. Die gesamte Wohnfläche des Gebäudes beträgt 322 m², zusätzlich stehen rund 100 m² Kellerfläche zur...
Ausstattung
Ausstattung und Besonderheiten:
Baujahr: 1972, massiv gebaut
Sanierung: Komplett saniert (2010) mit Fassadendämmung, neuen Fenstern und Solarheizung
Wohneinheiten: 4 vermietete Wohneinheiten
Wohnfläche: Insgesamt 322 m²
Kellerfläche: Ca. 100 m²
Grundstück: 1.369 m²
Heizung...
Preisinformation
Ist-Mieteinnahmen pro Monat: 2.080,00 EUR
Weitere Informationen
Sonstiges
Das angebotene Mehrfamilienhaus stellt eine ausgezeichnete Möglichkeit für Kapitalanleger dar, die auf eine nachhaltige und wertstabile Investition setzen möchten. Mit den bereits laufenden Mietverhältnissen und der guten Erreichbarkeit von Infrastruktur ist das Objekt sowohl für langfristige Vermietung als auch...
Anbieter der Immobilie
ImmoNetzwerk GmbH
Giesebrechtstraße 10, 10629 Berlin
Online-ID: 2pmjr56
Referenznummer: FD1838
Finde Angebote wie dieses
Hier geht es zu unserem Impressum, den Allgemeinen Geschäftsbedingungen, den Hinweisen zum Datenschutz und nutzungsbasierter Online-Werbung.