

FALC Immobilien Bergstraße
Herr Andreas Dahm
062 ···
Nr. anzeigenPreise & Kosten
Provision für Käufer
3,57% inkl. MwSt vom not. Kaufpreis
Lage
Lampertheim-Hofheim, mit ca. 6.000 Einwohnern der größte Stadtteil von Lampertheim, ist eine ruhige Wohngemeinde im su?dhessischen Ried und gehört zur Metropolregion Rhein-Neckar, einer der größten Wirtschaftsregionen Deutschlands.
Über die Bundesstraßen 44 und 47 sind die Autobahnen A 61, A 67 und A 6 schnell zu...
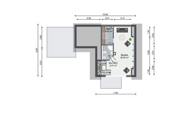
Das Haus
Kategorie
Einfamilienhaus
Baujahr
1991
Energie & Heizung
Warum sehe ich diese Anzeige? – Du siehst diese Anzeige basierend auf Ihrer Navigation auf unserer Website und den Suchkriterien, die du verwendet hast.
Energieausweistyp
Verbrauchsausweis
Gebäudetyp
Wohngebäude
Wesentliche Energieträger
Öl
Gültigkeit
11.11.2025 bis 11.11.2035
Effizienzklasse
F
Endenergieverbrauch
177,00 kWh/(m²·a) - Warmwasser enthalten
Weitere Energiedaten
Energieträger
Öl
Details
Objektbeschreibung
Dieses freistehende Einfamilienhaus ist kein klassisches Standardobjekt - sondern ein Zuhause mit Perspektive.
Hier verbinden sich großzügiges Wohnen, flexible Nutzungsmöglichkeiten und ein außergewöhnlicher Außenbereich zu einem Gesamtbild, das weit über das Übliche hinausgeht.
Ob als Familienmittelpunkt...
Ausstattung
Das Wohnhaus überzeugt durch eine solide, werthaltige Ausstattung mit hochwertigen Materialien und durchdachten Details.
Die weißen Kunststofffenster mit 2-fach-Verglasung sind im gesamten Haus mit elektrischen Rollläden ausgestattet und bieten komfortablen Sonnen-, Sicht- und Wärmeschutz.
Beheizt wird die...
Weitere Informationen
Sonstiges
Hinweis: Einige der Fotos sowie das Video enthalten von einer KI generierte Möblierungsvorschläge.
Wir bieten folgendes Prozedere für die Immobilienbesichtigung an:
1. Schauen Sie unser aussagekräftiges Exposé an
2. Bitte haben Sie Verständnis, dass wir Besichtigungen nur bei Vorliegen eines...
Anbieter der Immobilie

Online-ID: 2pmdc56
Referenznummer: FALC-AND-81091
Finde Angebote wie dieses
Hier geht es zu unserem Impressum, den Allgemeinen Geschäftsbedingungen, den Hinweisen zum Datenschutz und nutzungsbasierter Online-Werbung.