

OMEGA FinanzMarktPlatz
Herr Reinhard Otto
056 ···
Nr. anzeigenPreise & Kosten
Provision für Käufer
Bitte beachte, das Angebot beinhaltet bei Vertragsabschluss die Zahlung einer Provision. Weitere Informationen erhältst Du vom Anbieter.
Lage
Bad Zwesten ist bekannt und beliebt als familienfreundliches Kurbad mit sehr guten Einkaufsmöglichkeiten. Ärzte, Apotheke, Hallenbad, Kindergärten, Grundschule und weiterführende Schule (Gymnasium) sind vorh. Bad Zwesten bietet durch den Kurbetrieb eine ausgewogene Gastronomie (deutsche und italienische Küche, Cafés, Eisdiele...
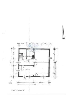
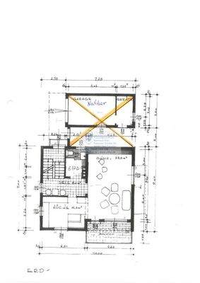
Das Haus
Kategorie
Einfamilienhaus
Details
Objektbeschreibung
Ruhig und doch zentral in einer Sackgasse gelegenes renoviertes Einfamilienteilhaus mit großem Südbalkon. Das Gesamtobjekt ist nach WEG geteilt. Gemeinsame Heizung aber sonst klar getrennt mit separaten Eingängen. Vollkeller - zu separater 2 Raum-Wohnung mit offene Küche neu ausgebaut. Wintergartenähnlicher Vor-/Anbau...
Ausstattung
Baujahr: 1976 - 2022 generalsaniert
Grundstück: 857 m²
Wohnfläche: ca. 130 m²
Zimmer: 5
Keller: zu 2-Raum-Wohnung ausgebaut
Fenster+Türen: 2022 neu inKunststoff, teilweise 3 fach - Türen neu
Fußboden: komplett neu in 2021/22
Heizung: Ölzentralheizung für Gesamtobjekt - Gasanschluß...
Weitere Informationen
Courtage
Wir sind Immobilienmakler. Unsere Angebote sind ausschließlich für den Empfänger bestimmt. Weitergabe an Dritte kann u. U. Schadenersatzansprüche wegen entgangener Maklerprovisionen nach sich ziehen. Unsere Dienstleistung bezieht sich auf den Nachweis oder die Vermittlung von Vertragsgelegenheiten. Mit Verwendung...
Anbieter der Immobilie

Online-ID: 2pmct56
Referenznummer: 22009 HS-RO
Finde Angebote wie dieses
Hier geht es zu unserem Impressum, den Allgemeinen Geschäftsbedingungen, den Hinweisen zum Datenschutz und nutzungsbasierter Online-Werbung.