
Sallier Immobilien e. K.
Herr Jürgen Sallier
004 ···
Nr. anzeigenPreise & Kosten
Provision für Käufer
3,57 % inkl. ges. USt.
Lage
- Ruhige, grüne Wohnlage in Barförde (Hohnstorf/Elbe).
- Elbnähe und Natur direkt vor der Tür - ideal für Spaziergänge und Radtouren.
- Einkauf, Schulen/Kitas und Ärzte in der Umgebung gut erreichbar.
- Gute Anbindung Richtung Lauenburg, Geesthacht und Hamburg - perfekt für Pendler.
Das Haus
Kategorie
Einfamilienhaus
Baujahr
1954
Bezug
sofort
Energie & Heizung
Warum sehe ich diese Anzeige? – Du siehst diese Anzeige basierend auf Ihrer Navigation auf unserer Website und den Suchkriterien, die du verwendet hast.
Energieausweistyp
Bedarfsausweis
Gebäudetyp
Wohngebäude
Wesentliche Energieträger
OEL
Gültigkeit
bis 30.03.2036
Effizienzklasse
G
Endenergiebedarf
235,50 kWh/(m²·a)
Weitere Energiedaten
Energieträger
Öl
Details
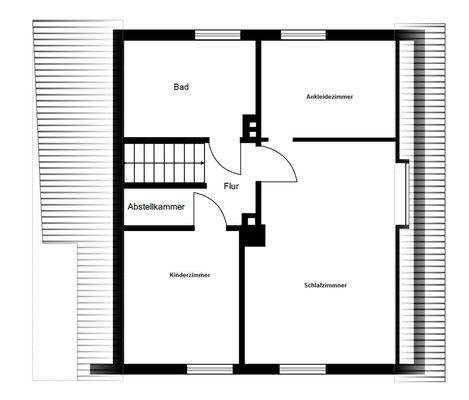
Objektbeschreibung
- Charmantes Einfamilienhaus in Hohnstorf (Elbe) / Barförde
- Ideal geeignet als gemütliches Zuhause zum Kauf
- Baujahr 1954 - zeitlose Architektur mit modernem Potenzial
- Großzügiges Grundstück von ca. 1.291 m² - viel Platz für Garten oder Freizeit
- Wohnfläche von ca. 90 m² - gut geschnittene Räume für die...
Ausstattung
Die Ausstattung des Hauses entspricht weitgehendst dem Baujahr. Es bietet viel Potenzial um Ihre Ideen und Wünsche zu verwirklichen.
Weitere Informationen
Stichworte
Nutzfläche: 25,00 m², Anzahl der Badezimmer: 2, Anzahl der separaten WCs: 1
Anbieter der Immobilie
Sallier Immobilien e. K.
Auf dem Meere 47, 21335 Lüneburg
Online-ID: 2pmc656
Referenznummer: 3108
Finde Angebote wie dieses
Hier geht es zu unserem Impressum, den Allgemeinen Geschäftsbedingungen, den Hinweisen zum Datenschutz und nutzungsbasierter Online-Werbung.