

Bien-Zenker GmbH - Markus Gerstung
Herr/Frau Markus Gerstung
036 ···
Nr. anzeigenPreise & Kosten
Provision für Käufer
nein
Lage
Kranlucken befindet sich im Umland der hessisch-thüringischen Grenze im Vorland des Biosphärenreservats Thüringer Rhön in einem nach Süden geneigten und nach Norden mit Wald begrenzten Gelände. Der Roßberg mit 693,6 Meter über NN ist der höchste Berg bei Schleid. Das Dorf wird verkehrsmäßig von der Kreisstraße 93 erfasst...
Das Haus
Kategorie
Einfamilienhaus
Energie & Heizung
Warum sehe ich diese Anzeige? – Du siehst diese Anzeige basierend auf Ihrer Navigation auf unserer Website und den Suchkriterien, die du verwendet hast.
Weitere Energiedaten
Haustyp
KfW 55
Heizungsart
Luft-/Wasser-Wärmepumpe
Details
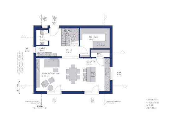
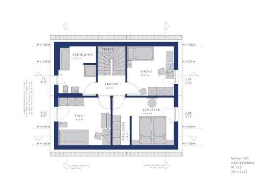
Objektbeschreibung
Unser EDITION 125 ist ein ebenso komfortables wie alltagspraktisches Eigenheim. Geschaffen für eine vierköpfige Familie, die einen eigenen Garderobenbereich ebenso zu schätzen weiß wie eine Speisekammer direkt im Anschluss an die Küche. Wenn man morgens das Schlafgeschoss - Elternschlafzimmer mit Ankleide, zwei Kinderzimmer...
Ausstattung
Wir erstellen Ihr Haus komplett bezugsfertig, deshalb sind folgende Leistungen in diesem Haus enthalten:
- Ausführung als förderfähiges Effizienzhaus 55, nach Ihrer Wahl selbstverständlich auch als Effizienzhaus 40 oder 40 plus,
- Inklusive Wohlfühl-Klima-Heizung mit Kühlfunktion
- Inklusive Bodenplatte mit...
Weitere Informationen
Sonstiges
Im angegebenen Preis für dieses projektierte Haus ist das Grundstück, welches Sie direkt von Dritten erwerben, bereits enthalten. Das Angebot ist unverbindlich und freibleibend, exklusive der Baunebenkosten wie z.B. Hausanschlüsse, Außenanlagen, Notar- und Gerichtskosten.
Abbildungen und Grundrisse zeigen...
Anbieter der Immobilie
Bien-Zenker GmbH - Markus Gerstung
Brunnhartshausen 30, 36466 Dermbach

Online-ID: 2pmbe57
Referenznummer: 12341-14298
Finde Angebote wie dieses
Hier geht es zu unserem Impressum, den Allgemeinen Geschäftsbedingungen, den Hinweisen zum Datenschutz und nutzungsbasierter Online-Werbung.