

Immoprojekt Pfalz
Herr Marc Gregor
+49 ···
Nr. anzeigenPreise & Kosten
Provision für Käufer
provisionsfrei
Lage
Die Immobilie befindet sich in Langemåla in der südschwedischen Region Småland (Kalmar län). Die Umgebung ist geprägt von weitläufigen Wäldern, Seen und einer ruhigen, naturnahen Struktur.
Entfernungen:
- ca. 10 Minuten zum nächsten See
- ca. 25 Minuten zur Ostsee
- ca. 45 Minuten nach Kalmar (inkl...
Das Haus
Details
Objektbeschreibung
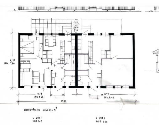
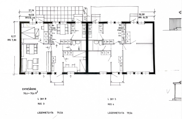
Mitten in der weiten Landschaft Smålands liegt dieses Ensemble aus drei freistehenden Häusern - ruhig, naturnah und eingebettet in die typische schwedische Umgebung aus Wäldern, Wiesen und Seen.
Auf einem großzügigen Grundstück von ca. 7.500 m² verteilen sich insgesamt sechs separate Wohneinheiten mit einer...
Ausstattung
Das Objekt ist mit einer Elektro-Zentralheizung ausgestattet. Die Warmwasseraufbereitung erfolgt ebenfalls zentral über Elektro. Wasser, Abwasser und Müllentsorgung sind kommunal angeschlossen. Jede Einheit verfügt zusätzlich über ein ca. 10 m² großes Gartenhaus. Internetanschluss ist aktuell nicht eingerichtet, grundsätzlich...
Weitere Informationen
Sonstiges
Bei einer Vermietung kann von Übernachtungspreisen von ca. 500€ pro Woche/ Einheit ausgegangen werden.
Bei einer annähernd guten Auslastung kann der Invest somit in kürzester Zeit amortisiert werden.
Für weitere Informationen bitte das Formular mit vollständigen Kontaktdaten ausfüllen.
Ich setze mich...
Anbieter der Immobilie
Immoprojekt Pfalz
Bahnhofstraße 1b, 67454 Haßloch

Online-ID: 2pm5652
Referenznummer: 234
Finde Angebote wie dieses
Hier geht es zu unserem Impressum, den Allgemeinen Geschäftsbedingungen, den Hinweisen zum Datenschutz und nutzungsbasierter Online-Werbung.