
OPATZ Property GmbH
Frau Katja Bolte
004 ···
Nr. anzeigenPreise & Kosten
Kaution
2.250,00
Warum sehe ich diese Anzeige? – Du siehst diese Anzeige basierend auf Ihrer Navigation auf unserer Website und den Suchkriterien, die du verwendet hast.
Lage
Das Mietobjekt befindet sich in einer verkehrsberuhigten Wohnstraße im besonders begehrten Stadtteil "Schwachhausen". Die Infrastruktur ist als sehr gut zu bezeichnen. Einkaufsmöglichkeiten für den täglichen Bedarf sowie eine Anbindung an den Öffentlichen Personennahverkehr (z. B. Straßenbahnlinie 6) sind in wenigen Minuten...
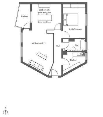
Die Wohnung
Wohnungslage
2. Geschoss
Bezug
01.05.2026
Wohnanlage
Energie & Heizung
Warum sehe ich diese Anzeige? – Du siehst diese Anzeige basierend auf Ihrer Navigation auf unserer Website und den Suchkriterien, die du verwendet hast.
Weitere Energiedaten
Energieträger
Gas
Heizungsart
Etagenheizung
Details
Objektbeschreibung
Dieses Mehrfamilienhaus im Bremer Stadtteil "Schwachhausen" wurde 1953 errichtet. Es handelt sich um eine gepflegte Immobilie mit zwölf Wohneinheiten. Sämtliche Wohnungen überzeugen durch eine gute Raumaufteilung. Jede Wohnung verfügt über einen Balkon. Ein eigener Kellerraum, eine Gemeinschaftswaschküche mit eigenem...
Ausstattung
Die hier angebotene 2-Zi.-Wohnung präsentiert sich in einem gepflegten Zustand und wird renoviert an den neuen Mieter übergeben. Im Hinblick auf die Ausstattung möchten wir u.a. auf nachfolgende Details hinweisen:
-Laminat in sämtlichen Wohn- und Schlafräumen
-Separate Küche mit cremefarbener Einbauküche
-Weiß...
Weitere Informationen
Stichworte
Anzahl der Schlafzimmer: 1, Anzahl der Badezimmer: 1, Anzahl Balkone und Terrassen: 1
Anbieter der Immobilie
OPATZ Property GmbH
Kommodore-Ziegenbein-Allee 3, 28217 Bremen
Online-ID: 2pm3j55
Referenznummer: 12362_008
Finde Angebote wie dieses
Hier geht es zu unserem Impressum, den Allgemeinen Geschäftsbedingungen, den Hinweisen zum Datenschutz und nutzungsbasierter Online-Werbung.