

KRAUSE Immobilien
Frau Yasemin Krause
+49 ···
Nr. anzeigenPreise & Kosten
Provision für Mieter
Die Vermittlungsprovision beträgt 2,5 Monatsmieten zuzüglich MwSt.
Warum sehe ich diese Anzeige? – Du siehst diese Anzeige basierend auf Ihrer Navigation auf unserer Website und den Suchkriterien, die du verwendet hast.
Lage
1B-Lage
Burgkirchen an der Alz liegt im oberbayerischen Landkreis Altötting und bietet eine ruhige, familienfreundliche Atmosphäre mit guter Infrastruktur. Die Stadt ist bekannt für ihre Nähe zur Natur, die zahlreichen Freizeitmöglichkeiten und die starke wirtschaftliche Verknüpfung mit der Chemieindustrie. Der...
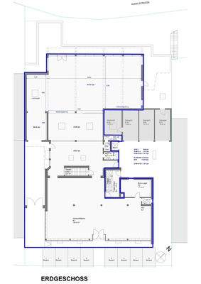
Die Ladenfläche
Kategorie
Laden
Bezug
sofort
Fensterfront
25,00 m
Energie & Heizung
Warum sehe ich diese Anzeige? – Du siehst diese Anzeige basierend auf Ihrer Navigation auf unserer Website und den Suchkriterien, die du verwendet hast.
Weitere Energiedaten
Energieträger
Gas
Heizungsart
Etagenheizung
Details
Objektbeschreibung
Diese attraktiven Geschäftsräume befinden sich im Herzen von Burgkirchen und bestechen durch ihre hervorragende Sichtlage sowie ideale Erreichbarkeit. Dank der zentralen Position profitieren Mieter hier von einer hohen Passantenfrequenz und einer erstklassigen Infrastruktur.
Die Immobilie zeichnet sich durch ihre...
Ausstattung
Ausstattungsmerkmale:
. Ca. 25 lfm Schaufensterfront mit bester Sichtbarkeit
. Große Helle Giebelfenster Front
. Balkon
. Heller und großzügig geschnittener Verkaufsraum
. Große Schaufensterfront mit optimaler Werbewirkung
. Zentral gelegener Eingang mit guter Kundenfrequenz
. Sanitärbereich...
Preisinformation
8 Stellplätze
Weitere Informationen
Sonstiges
Wir freuen uns sehr, Ihnen diese Gewerbeimmobilie, welche sich hervorragend als Büro oder Praxis, sowie Ladengeschäft eignet, zum Mieten anbieten zu können.
Die Vermittlungsprovision beträgt 2,5 Monats Kaltmieten zzgl. MwSt.
Gerne vereinbaren wir einen Besichtigungstermin mit Ihnen.
Weitere...
Dokumente
Anbieter der Immobilie

Online-ID: 2plz457
Referenznummer: 163
Finde Angebote wie dieses
Hier geht es zu unserem Impressum, den Allgemeinen Geschäftsbedingungen, den Hinweisen zum Datenschutz und nutzungsbasierter Online-Werbung.