
Infico UG (haftungsbeschränkt)
Cornelia Röpke
091 ···
Nr. anzeigenPreise & Kosten
Provision für Käufer
2.38 % inkl. MwSt.
Das Renditeobjekt
Kategorie
Mehrfamilienhaus
Baujahr
1973
Bezug
sofort
Energie & Heizung
Warum sehe ich diese Anzeige? – Du siehst diese Anzeige basierend auf Ihrer Navigation auf unserer Website und den Suchkriterien, die du verwendet hast.
Wärme
Energieausweistyp
Verbrauchsausweis
Gebäudetyp
Nicht-Wohngebäude
Baujahr laut Energieausweis
1973
Wesentliche Energieträger
Öl
Gültigkeit
seit 30.03.2026
Endenergieverbrauch (Wärme)
121,00 kWh/(m²·a)
Weitere Energiedaten
Energieträger
Öl
Heizungsart
Zentralheizung
Details
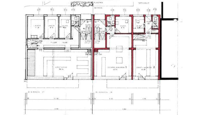
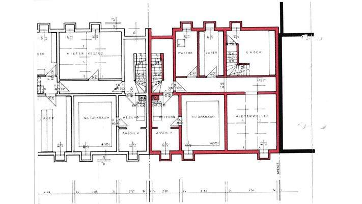
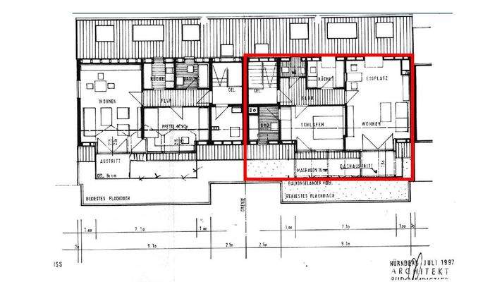
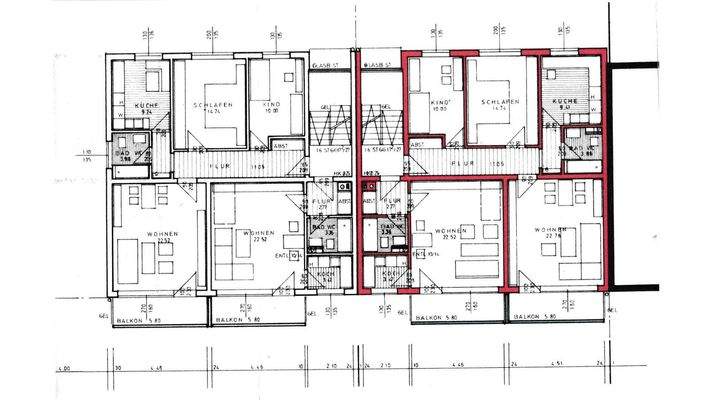
Objektbeschreibung
Sie erwerben ein penibel gepflegtes Mehrfamilienhaus in Nürnberg Ziegelstein.
Ziegelstein ist bekanntermassen ein Stadteil von Nürnberg in exponierter Lage mit hohem Wertschöpfungspotential.
Die Liegenschaft verfügt über eine gewerbliche und wohnwirtschaftliche Nutzung, wobei der Anteil der Gewerbefläche am ganzen...
Preisinformation
2 Garagenstellplätze
Ist-Mieteinnahmen pro Jahr: 47.683,20 EUR
Weitere Informationen
Stichworte
Garage vorhanden, vermietbare Fläche: 406,09 m², Anzahl Balkone: 4, Anzahl Terrassen: 1, 3 Etagen
Anbieter der Immobilie
Infico UG (haftungsbeschränkt)
Nimrodstr. 10, 90411 Nürnberg
Online-ID: 2plyf55
Referenznummer: 10766
Finde Angebote wie dieses
Hier geht es zu unserem Impressum, den Allgemeinen Geschäftsbedingungen, den Hinweisen zum Datenschutz und nutzungsbasierter Online-Werbung.