
ÄRZTE & APOTHEKER IMMOBILIEN
Herr Alexander Rixen
004 ···
Nr. anzeigenPreise & Kosten
Provision für Käufer
3,57 % inkl. ges. MwSt.
Lage
Nur wenige Gehminuten vom feinen Ostseestrand entfernt, liegt diese Wohnung in einer der begehrtesten Wohnlagen Scharbeutz'. Eingebettet in eine ruhige Wohnstraße, umgeben von gepflegten Häusern und kleinen Gärten, verbindet die Lage auf besondere Weise Urlaubsflair, Privatsphäre und Lebensqualität. Hier spüren Sie das Meer -...
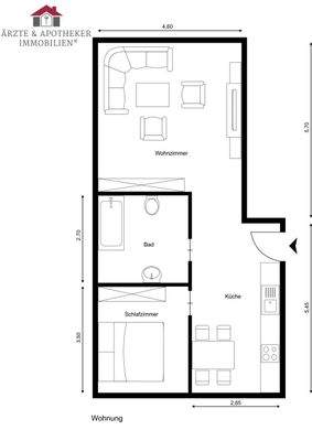
Die Wohnung
Wohnungslage
Erdgeschoss
Bezug
Nach Absprache
Wohnanlage
Energie & Heizung
Warum sehe ich diese Anzeige? – Du siehst diese Anzeige basierend auf Ihrer Navigation auf unserer Website und den Suchkriterien, die du verwendet hast.
Energieausweistyp
Bedarfsausweis
Gebäudetyp
Wohngebäude
Baujahr laut Energieausweis
1973
Wesentliche Energieträger
GAS
Gültigkeit
bis 03.07.2028
Effizienzklasse
G
Endenergiebedarf
184,60 kWh/(m²·a)
Weitere Energiedaten
Energieträger
Gas
Heizungsart
Zentralheizung
Details
Objektbeschreibung
Erleben Sie das besondere Gefühl von Urlaub im eigenen Zuhause. Diese hochwertig sanierte 2-Zimmer-Wohnung vereint stilvolles Design, durchdachte Raumaufteilung und eine Lage, die Urlaubsatmosphäre garantiert. In einem gepflegten Haus mit nur sechs Wohneinheiten genießen Sie hier ein privates, ruhiges Wohnumfeld - perfekt für...
Ausstattung
- Sonnige Terrasse mit Südwest-Ausrichtung, elektrischer Markise und Rollläden
- Privater Stellplatz im Kaufpreis enthalten
- Nur ca. 300 Meter bis zum Meer
- Eigener Kellerraum sowie Türöffner mit Gegensprechanlage
- 2022 vollständig saniert und teilmöbliert mit hochwertigen Einbauten
-...
Preisinformation
1 Stellplatz, Kaufpreis: 9.900,00 EUR
Weitere Informationen
Sonstiges
Vielen Dank für Ihr Interesse an der von uns angebotenen Immobilie.
Bitte haben Sie Verständnis dafür, dass wir unseren Auftraggebern Diskretion zugesagt haben und Sie daher um die Angabe Ihrer vollständigen Kontaktdaten inkl. Ihrer Telefonnummer bitten müssen.
Gern senden wir Ihnen anschließend ein...
Anbieter der Immobilie
ÄRZTE & APOTHEKER IMMOBILIEN
Lindenstr. 29, 21335 Lüneburg
Online-ID: 2plv957
Referenznummer: 221352-14
Finde Angebote wie dieses
Hier geht es zu unserem Impressum, den Allgemeinen Geschäftsbedingungen, den Hinweisen zum Datenschutz und nutzungsbasierter Online-Werbung.